Jan-Philip Radde

Sightline House

Environmental Design
2018
The brief for this project was to design a custom residence for one of a variety of clients with different ability challenges. The selected client profile was a 30-year-old, designer and architect couple. The ability challenges one of these clients faced was severe claustrophobia, an instability in certain spatial and social settings, as well as being housebound or rarely leaving the house. Additional project parameters outlined that 50 - 100% of the original exterior walls were to be kept as well as allowing expansion of the building to the west side and a partial 3rd floor with rooftop space.Work on the project began by researching the ability challenges of the client to get a better understanding so that the design of the building could address their needs. What was learned from this was that claustrophobia was not as much about a fear of small spaces, but rather a fear of being unable to escape. With this in mind, the building was designed so that all spaces have lines of sight to other spaces in the house. Wooden slat partitions are a key element of this house as they serve to both define different spaces but allow for transparency between them.As the clients were an architect and designer who worked from home, the studio space was placed closest to the entrance to keep the public/working area separate from the rest of the private spaces in the house. The clients would be spending large amounts of time working in that studio space, so it was designed with a double-height ceiling and plenty of windows to let in indirect daylight. Large windows were used in the interior as well to enlarge the space. A rooftop garden and gym were added to the building to provide a comfortable environment to work out in as well as private outdoor green space.

Share with someone

Exterior Render 1
Exterior Render 1
Perspective Render from Entrance
Perspective Render from Entrance
Perspective Render from Mezzanine
Perspective Render from Mezzanine
Exploded Isometric
Exploded Isometric
Wall Tags
Wall Tags
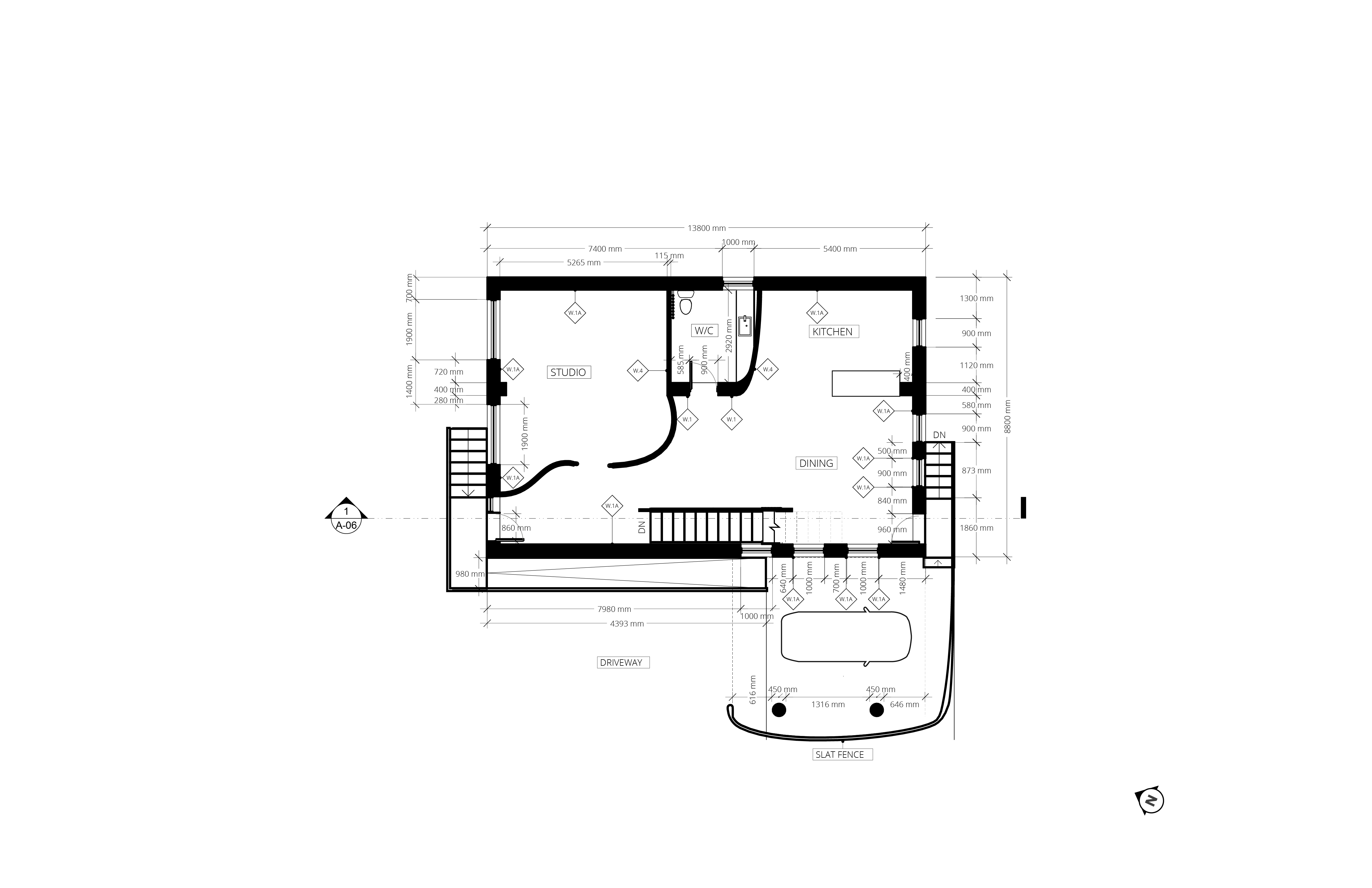
First Floor Plan
First Floor Plan
Second Floor Plan
Second Floor Plan
West Section Detail
West Section Detail

Work by

Jan-Philip Radde

Interdisciplinary Designer