Chloe Lin

Fashion Office

Interior Design
2020
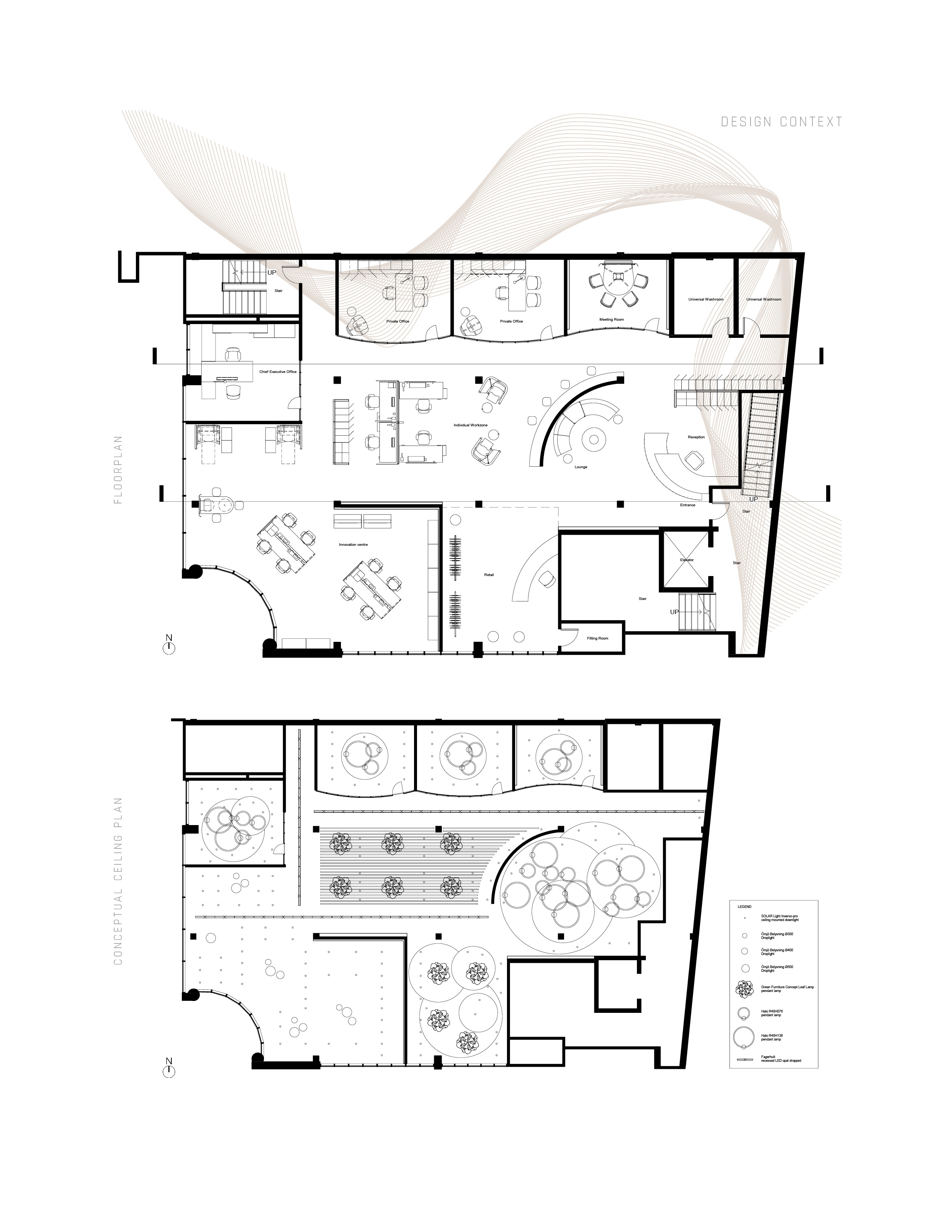
In this student project, me and my group were asked to design a new working space for a Toronto based Fashion House. The Fashion Studio required intricate development of spaces as well as surfaces that can respond to the range of creative activities and collaborations. The designer we selected was Steven Lejambe. The focus of this project was to build a space that is both functional as well as consistent with the overall concept and driving principles.

“Our concept was “Boundlessness“. In our design, we tried to balance between openness and privacy, the visible and invisible, as well as integration and separation. The main goal of this project was to promote an office space that is free and have no bounds, and to translate our client’s fashion dress code into a three dimensional space. We hope to improve the working environment, and to open up more possibilities for not only our client, but also the future users. The goal was achieved through the materials relationship, the furniture and fixture selection, and the flowing and boundless architectural elements used from space to space.The original concept of our project actually was not “Boundlessness“ at the beginning. The initial concept was “Elegance”, the word itself defined as a beauty shows unusual effectiveness and simplicity. We later on combined three key words of our project , which are “Boundless, Openness and Flowing”, and eventually arrived at and focused on the single word “Boundlessness”. However, although the concept changed along the project, the goal we are pursuing has always stayed the same.”

Share with someone

Fashion Office
Fashion Office
Fashion Office
Fashion Office
Fashion Office
Fashion Office
Fashion Office
Fashion Office
Fashion Office
Fashion Office
Fashion Office
Fashion Office
Fashion Office
Fashion Office
Fashion Office
Fashion Office
Fashion Office
Fashion Office
Fashion Office
Fashion Office
Fashion Office
Fashion Office
Fashion Office
Fashion Office
Fashion Office
Fashion Office
Fashion Office
Fashion Office
Fashion Office
Fashion Office
Fashion Office
Fashion Office
Fashion Office
Fashion Office
Fashion Office
Fashion Office
Fashion Office
Fashion Office
Fashion Office
Fashion Office

Work by

Chloe Lin

Environmental Design: Interior Design Specialization

“Hi, my name is Chloe Lin. Welcome to my portfolio.”