Chloe Lin

Black Hotel

Environmental Design
2020
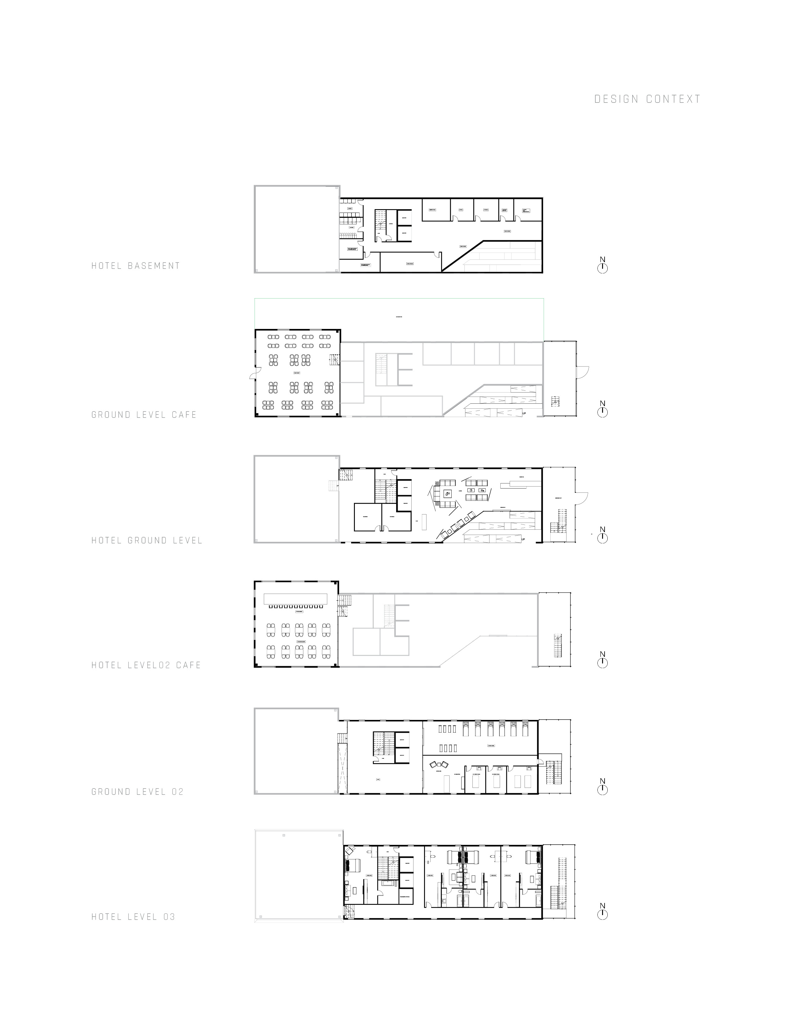
In this student project, I was asked to create a hotel in the Heritage Building at 460 King Street West, at the northwest corner of King and Spadina in Toronto, Canada. The original building was built in 1873 with a later addition to the north.Located at fashion district, the hotel was surrounded by shops and restaurants. The target demographics of Black hotel were consumers who valued and seeked an unique and mysterious experience. The concept of the hotel was “mystery”. Black hotel aimed to stand out in the area, to translate the idea of modern and luxury in its contemporary architectural form.

“The concept of Black Hotel was “mystery”. Black Hotel aimed to stand out in the urban landscape, and provided an unique and mysterious experience for its consumers. The goal was defined through the programming, the different design of each room, and the material relationships used from the outside to inside, as well as achieved through the modernity and luxury in its contemporary architectural form. The first impression of the hotel was powerful yet mysterious. I tried to balance between openness and privacy, the visible and invisible, and the integration and separation. Black and gold as the main colour theme used throughout the hotel; black symbolized “power”, and gold symbolized “luxury”. As it was also located at a heritage site, and as an extension of the heritage building, Black hotel generated contrasts between the existing elements and addition to demonstrate the relationship of tradition and modernity.”

Share with someone

Black Hotel
Black Hotel
Black Hotel
Black Hotel
Black Hotel
Black Hotel
Black Hotel
Black Hotel
Black Hotel
Black Hotel
Black Hotel
Black Hotel
Black Hotel
Black Hotel
Black Hotel
Black Hotel
Black Hotel
Black Hotel
Black Hotel
Black Hotel
Black Hotel
Black Hotel
Black Hotel
Black Hotel
Black Hotel
Black Hotel
Black Hotel
Black Hotel
Black Hotel
Black Hotel
Black Hotel
Black Hotel
Black Hotel
Black Hotel
Black Hotel
Black Hotel
Black Hotel
Black Hotel

Work by

Chloe Lin

Environmental Design: Interior Design Specialization

“Hi, my name is Chloe Lin. Welcome to my portfolio.”