Tarryn Thompson

Éclore

Environmental Design
2021
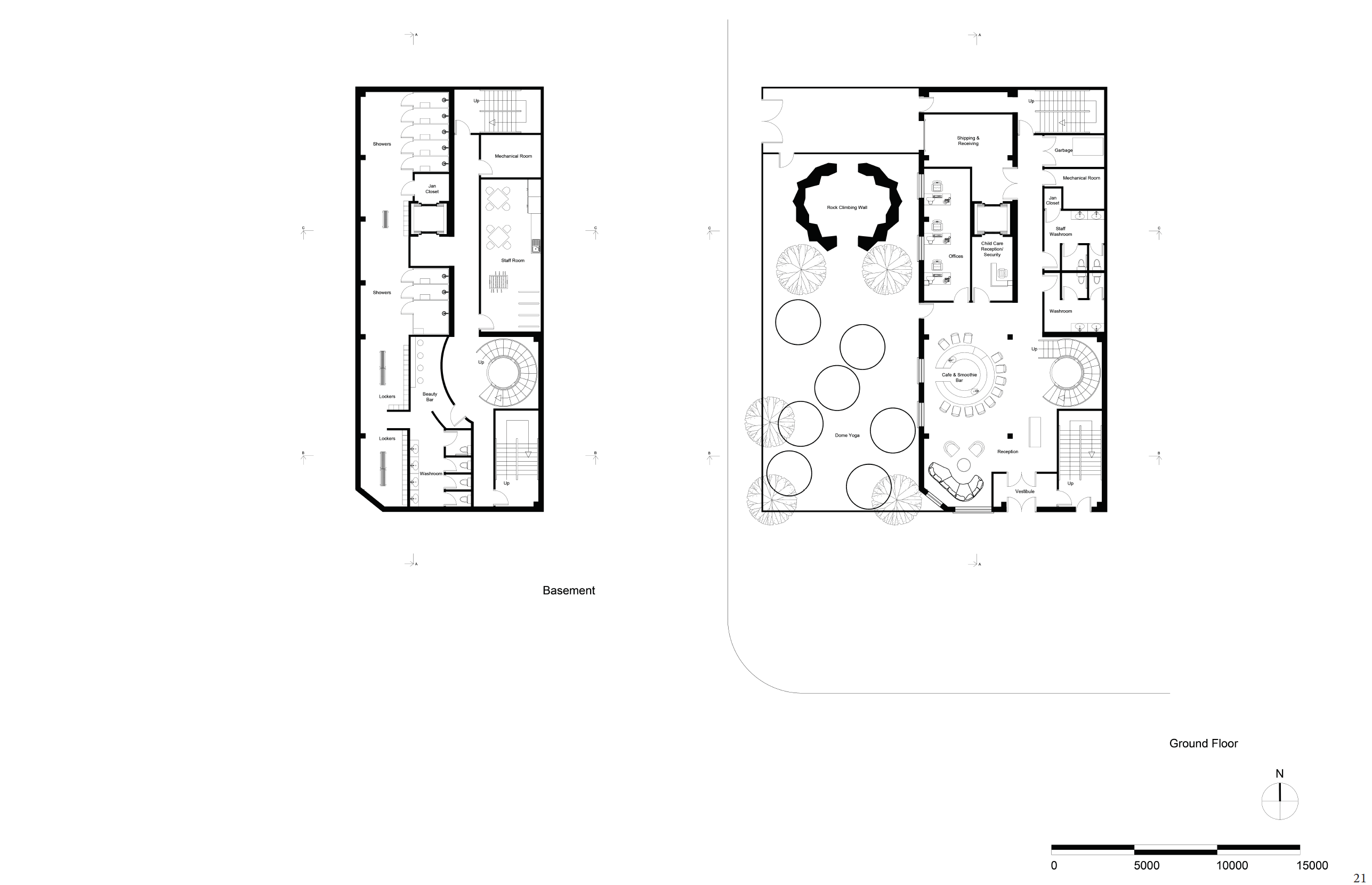
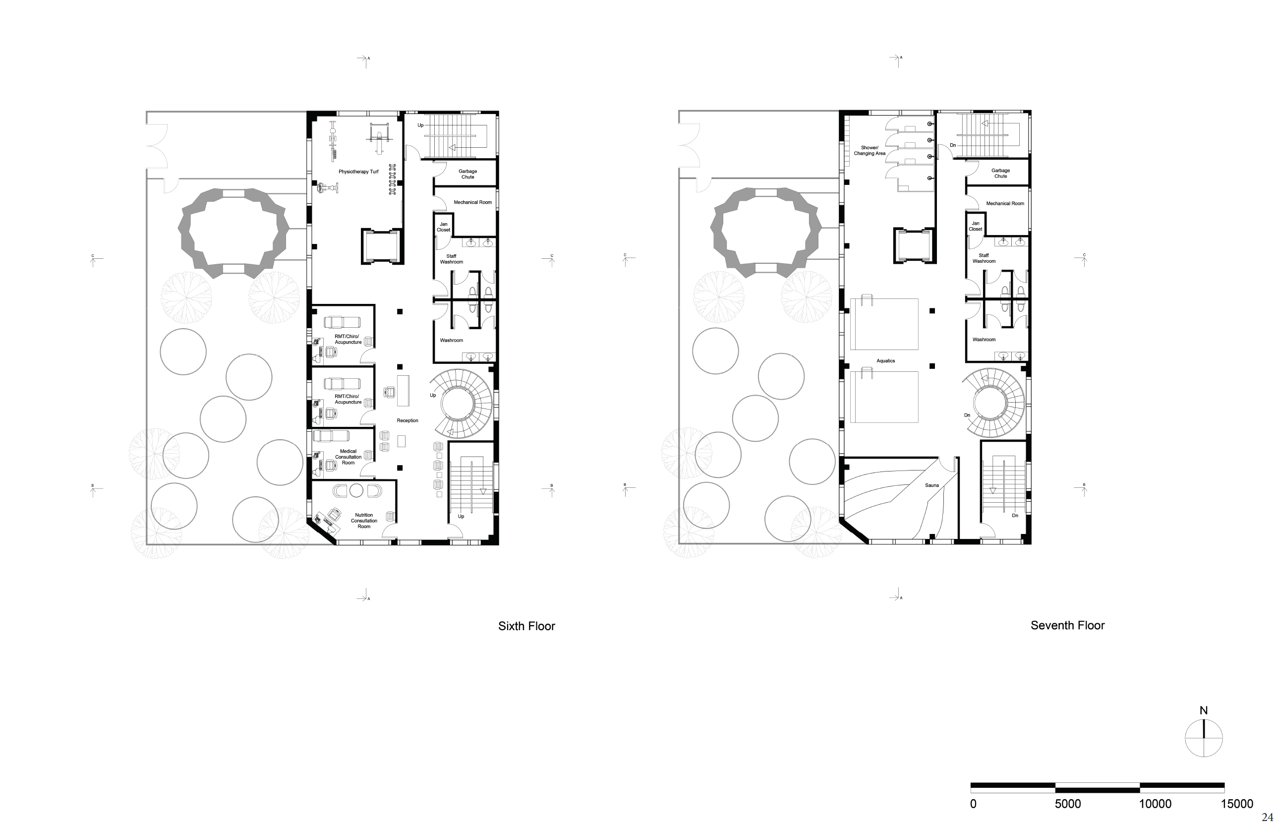
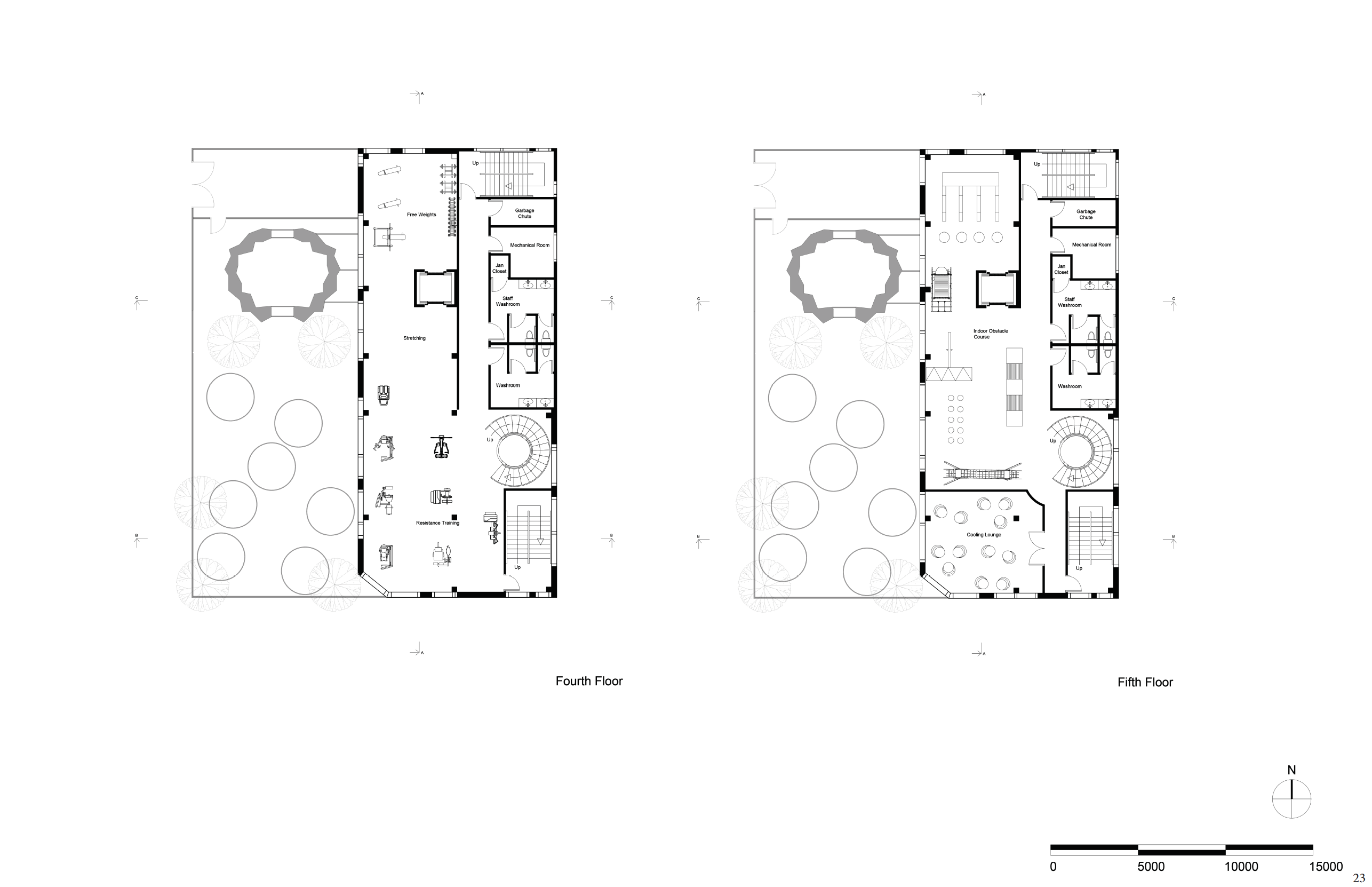
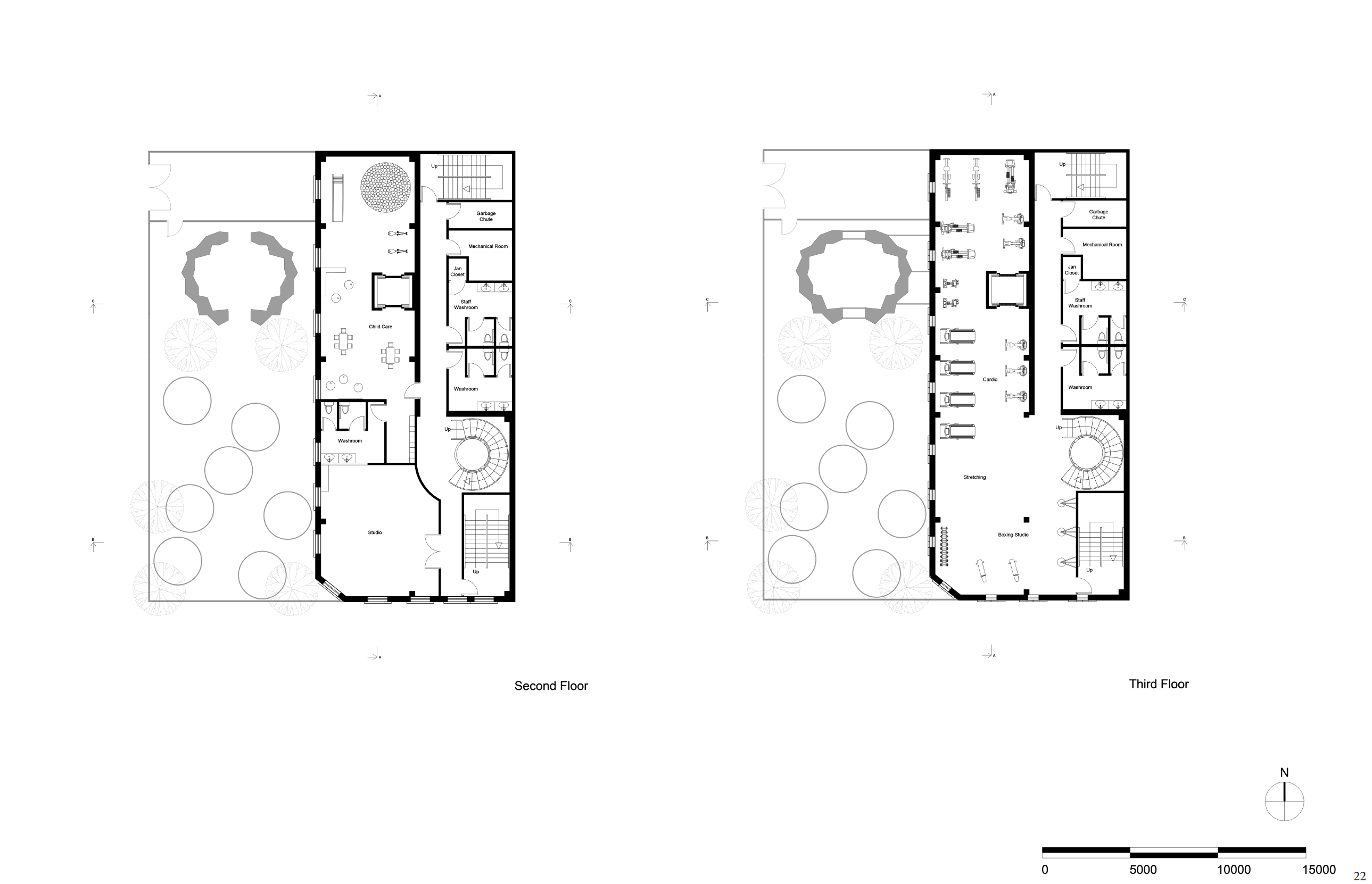
This thesis year has given me the opportunity to creatively explore and witness the coming together of two of my biggest passions - history and exercise. The inspiration behind my project was fueled by a love for older architecture and the stories these buildings live to tell, coupled with my desire for a more meaningful connection and stronger relationship between physical and mental health at gyms in our downtown core. My approach has been one of adaptive reuse, to transform a 188-year old building into a fully-functioning fitness and health centre that merges physical and mental health. A large part in achieving this has been to strive for diversity in the type of physical activity offered, and also involve a social aspect to combat the typical individuality and aloneness we tend to engage in when at the gym. The inclusion of a social aspect will encourage and create a strong community bond within the facility.

“As designers, we need to understand and respect the context of existing buildings. We should be able to look at an old structure and not think about how we can give space for the new, but rather consider the ways we can transform, reuse, adapt and recycle, so that we can add to the layers of history rooted in our built environment and allow the stories of the past that have shaped our world to be present today. Preservation does not only give an old building new life, and new meaning but in turn, old and new architecture can work together to create something so visually beautiful and unique. There is also huge economic and cultural value of reuse. For said reasons, it is important for modern day architects, where working with historical contexts, to incorporate the old with the new in their designs; preserving as much as possible and destroying as little as possible.”

Share with someone

Éclore
Éclore
Éclore
Éclore
Éclore
Éclore
Éclore
Éclore
Éclore
Éclore
Éclore
Éclore
Éclore
Éclore
Éclore
Éclore
Éclore
Éclore
Éclore
Éclore
Éclore
Éclore
Éclore
Éclore
Éclore
Éclore
Éclore
Éclore
Éclore
Éclore
Éclore
Éclore
Éclore
Éclore
Éclore
Éclore
Éclore
Éclore
Éclore
Éclore
Éclore
Éclore
Éclore
Éclore
Éclore
Éclore
Éclore
Éclore
Éclore
Éclore
Éclore
Éclore
Éclore
Éclore
Éclore
Éclore
Éclore
Éclore
Éclore
Éclore

Work by

Tarryn Thompson

Environmental Design

“Design should be thoughtfully expressed while creating a quality-filled human experience to ultimately arrive at a union between beauty and functionality. I am driven to create buildings and spaces...” [More]