Tsung-Chen Yao
Alzheimer Complex
Environmental Design
2024
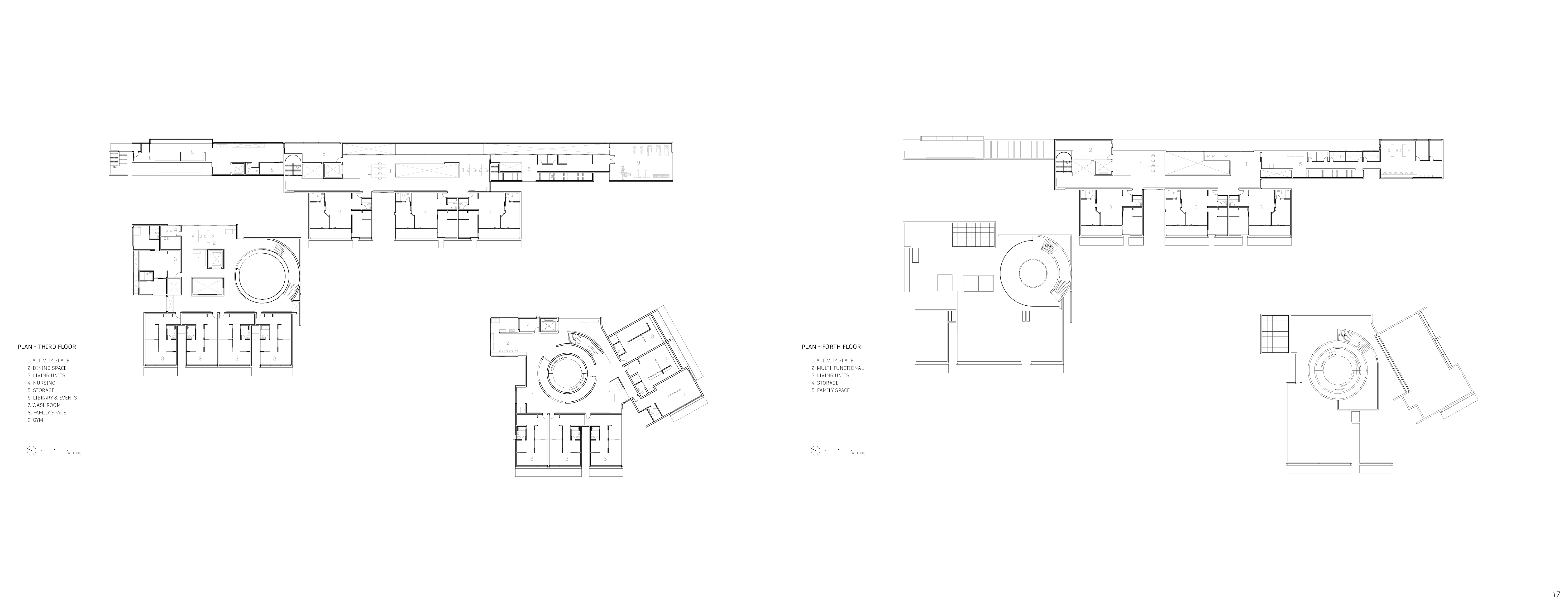
Due to the weakening of abilities such as wayfinding, physical control, and emotional regulation, individuals with cognitive impairment are often entrusted to care-oriented institutions, resulting in a loss of independenceThe objective of the architectural proposal for Alzheimer's care is to envision a low-rise residential complex in Toronto for short-term living. By examining egocentric perception and body control, the aim is to establish a living environment that fosters greater autonomy for individuals suffering from dementia, seeking to potentially slow down the progression of symptoms and exploring the possibilities of healing through the space itself.
