Phinney Ni

Through the Forest

Interior Design
2022
We made this design with the theme of a forest at the end of autumn, focusing on the flow of light through the forest and the difference in atmosphere during a day. We selected a lot of neutral and warm color tones as the main colors for the whole space and referenced the wabi-sabi style.

Share with someone

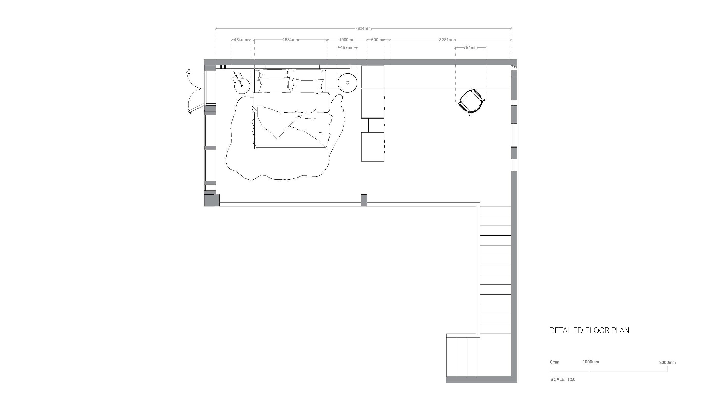
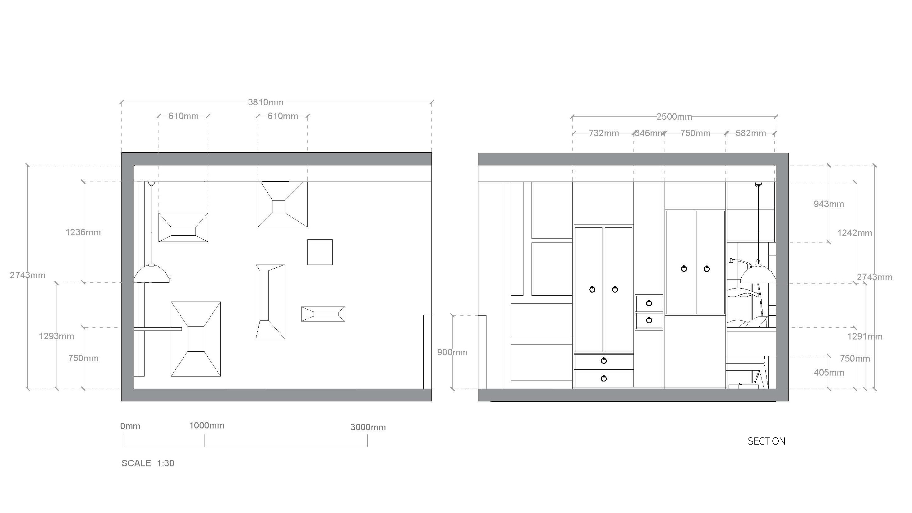
Through the Forest
Through the Forest
Through the Forest
Through the Forest
Through the Forest
Through the Forest
Through the Forest
Through the Forest
Through the Forest
Through the Forest
Through the Forest
Through the Forest
Through the Forest
Through the Forest
Through the Forest
Through the Forest
Through the Forest
Through the Forest
Through the Forest
Through the Forest

Work by

Phinney Ni

Environmental Design

“Design is an art of balance.”