Ankita Lukose

Bloom Together Children’s Rehabilitation Centre - Booklet

Environmental Design
2023
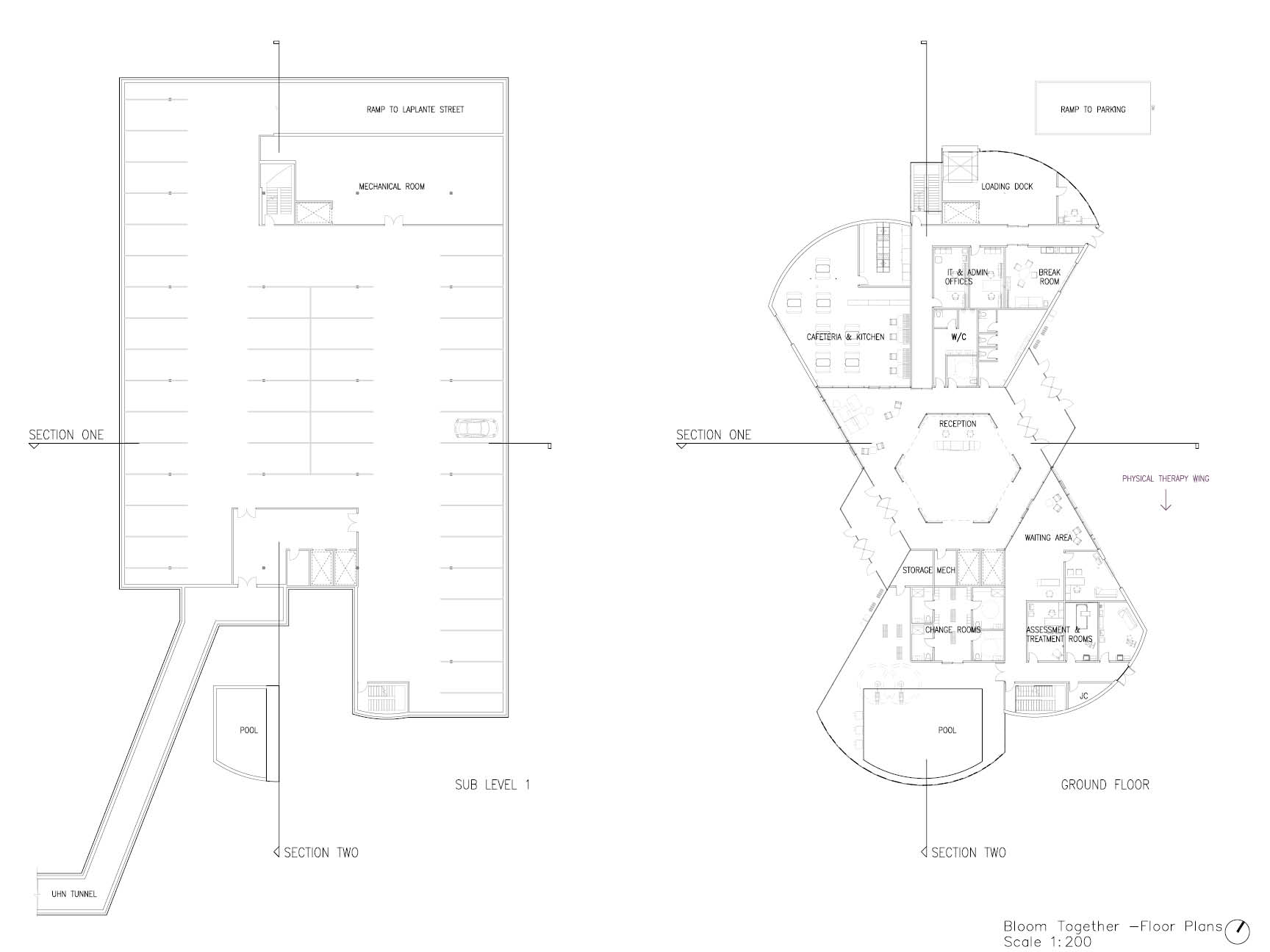
“Human habitats shape children in ways we don’t appreciate.” - Tim Gill (Author) Programmatically designed to enhance children’s experiences, social connections and learning opportunities presented, Bloom Together provides fun and safe spaces for children to explore and discover themselves. The project is a children’s rehabilitation centre located on 90 Gerrard St W, Bloom Together shares a UHN tunnel connection and is walking distance from SickKids Hospital and Toronto General Hospital. Through innovation and creativity, the designed environment utilizes landscape sensory gardens, recreational therapy programs and shared spaces to support children while remaining ‘fun’ctional. Taking the idea that the built environment facilitates experiences and interactions, my concept revolves around Community Support with the chosen metaphor to visualize the concept being bees. The three types of therapy provided at Bloom Together are physical, occupational and speech therapy, alongside inpatient care to provide a well-rounded and all-inclusive environment. Predominant design features include a sloped green roof, multiple two storey programmed spaces, a central courtyard, and a timber framed fascia to induce originality and give a unique experience to the children utilizing the facility. Key sustainability components include ceramic ink fused glass to reduce heat gain, heavy timber construction, carbon neutral concrete paneling, and an abundance of programmatically incorporated greenery.

“Children perceive and experience the built environment different from adults; consequently, spaces designed for them can improve quality of life, enhance the healing process, and help children form vital social connects. ”

Share with someone

Bloom Together Children’s Rehabilitation Centre - Booklet
Bloom Together Children’s Rehabilitation Centre - Booklet
Bloom Together Children’s Rehabilitation Centre - Booklet
Bloom Together Children’s Rehabilitation Centre - Booklet
Bloom Together Children’s Rehabilitation Centre - Booklet
Bloom Together Children’s Rehabilitation Centre - Booklet
Bloom Together Children’s Rehabilitation Centre - Booklet
Bloom Together Children’s Rehabilitation Centre - Booklet
Bloom Together Children’s Rehabilitation Centre - Booklet
Bloom Together Children’s Rehabilitation Centre - Booklet
Bloom Together Children’s Rehabilitation Centre - Booklet
Bloom Together Children’s Rehabilitation Centre - Booklet
Bloom Together Children’s Rehabilitation Centre - Booklet
Bloom Together Children’s Rehabilitation Centre - Booklet
Bloom Together Children’s Rehabilitation Centre - Booklet
Bloom Together Children’s Rehabilitation Centre - Booklet
Bloom Together Children’s Rehabilitation Centre - Booklet
Bloom Together Children’s Rehabilitation Centre - Booklet
Bloom Together Children’s Rehabilitation Centre - Booklet
Bloom Together Children’s Rehabilitation Centre - Booklet
Bloom Together Children’s Rehabilitation Centre - Booklet
Bloom Together Children’s Rehabilitation Centre - Booklet
Bloom Together Children’s Rehabilitation Centre - Booklet
Bloom Together Children’s Rehabilitation Centre - Booklet
Bloom Together Children’s Rehabilitation Centre - Booklet
Bloom Together Children’s Rehabilitation Centre - Booklet
Bloom Together Children’s Rehabilitation Centre - Booklet
Bloom Together Children’s Rehabilitation Centre - Booklet
Bloom Together Children’s Rehabilitation Centre - Booklet
Bloom Together Children’s Rehabilitation Centre - Booklet
Bloom Together Children’s Rehabilitation Centre - Booklet
Bloom Together Children’s Rehabilitation Centre - Booklet
Bloom Together Children’s Rehabilitation Centre - Booklet
Bloom Together Children’s Rehabilitation Centre - Booklet
Bloom Together Children’s Rehabilitation Centre - Booklet
Bloom Together Children’s Rehabilitation Centre - Booklet
Bloom Together Children’s Rehabilitation Centre - Booklet
Bloom Together Children’s Rehabilitation Centre - Booklet

Work by

Ankita Lukose

“Architecture forms a vital link between people and their surroundings... How different people choose to build connections in their environment essentially defines those societies and their...” [More]