Samantha Wong

THE COURT

Interior Design
2023
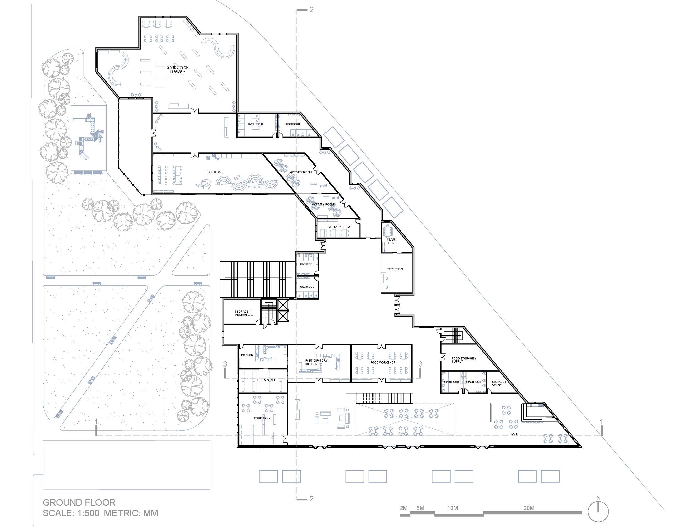
Current issues in the city of Toronto include homelessness, food insecurity, financial instability, and the lack of resources in many lower-income communities. Co-op housing is being replaced by highly valued skyscraper buildings. Technology and innovation advance and modernizes. Rent becomes inadequate for small business owners. Residents are being pushed out of their homes. With current real estate proposals and the near economic recession, living and being become nearly impossible. This ongoing change in communities, explains gentrification. Gentrification, commonly viewed through a negative lens, is bound to happen; it is inevitable. To what extent, can gentrification be balanced, supporting the needs and wants of all in the community through architectural programming and design. This thesis investigates the role and effects of gentrification and the urban renewal of Scadding Court Community Center and Alexandra Park. To achieve greater social engagement within the community, the space will feature a series of functional programmes by which members can interact with the interior, exterior, and themselves. This is a proposal to redesign this community hub; a space giving back to the city, the original residents, and the new wave.

“From Scadding Court Community to The Court; the revival, renewal, and realignment of the original mission of Scadding Court.”

Share with someone

THE COURT
THE COURT
THE COURT
THE COURT
THE COURT
THE COURT
THE COURT
THE COURT
THE COURT
THE COURT
THE COURT
THE COURT
THE COURT
THE COURT
THE COURT
THE COURT
THE COURT
THE COURT
THE COURT
THE COURT
THE COURT
THE COURT
THE COURT
THE COURT
THE COURT
THE COURT

Work by

Samantha Wong

Interior Design

“Designing meaningful spaces that inspire, support, and empower individuals to their full potential.”