Caroline Pratt

Restoring the Missing Middle in Toronto Neighbourhoods

Interior Design
2023
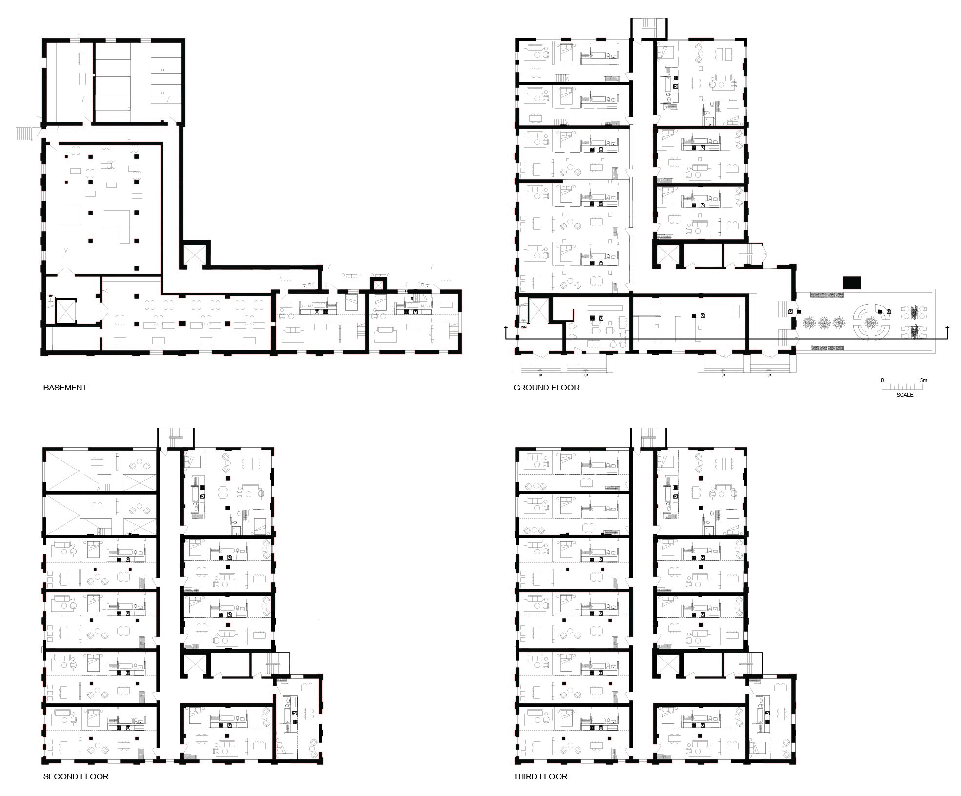
This project tackles the issue of the missing middle by readapting a historic building into live/work apartments, alongside community amenities and commercial spaces.

Share with someone

Restoring the Missing Middle in Toronto Neighbourhoods
Restoring the Missing Middle in Toronto Neighbourhoods
/
/
diagram
diagram
SITEPLAN
SITEPLAN
FLOOR
FLOOR
SECTION
SECTION
FLOORPLAN
FLOORPLAN
UNITRENDER
UNITRENDER
renders
renders
Restoring the Missing Middle in Toronto Neighbourhoods
Restoring the Missing Middle in Toronto Neighbourhoods
ELEVATIONS
ELEVATIONS

Work by

Caroline Pratt