Jiya Puri

01 - For Jurying Consideration

Environmental Design
2023
AutoCAD, SketchUp, Procreate, Adobe Illustrator, Adobe Photoshop, Adobe InDesign, Laser Cut & Watercolor paint
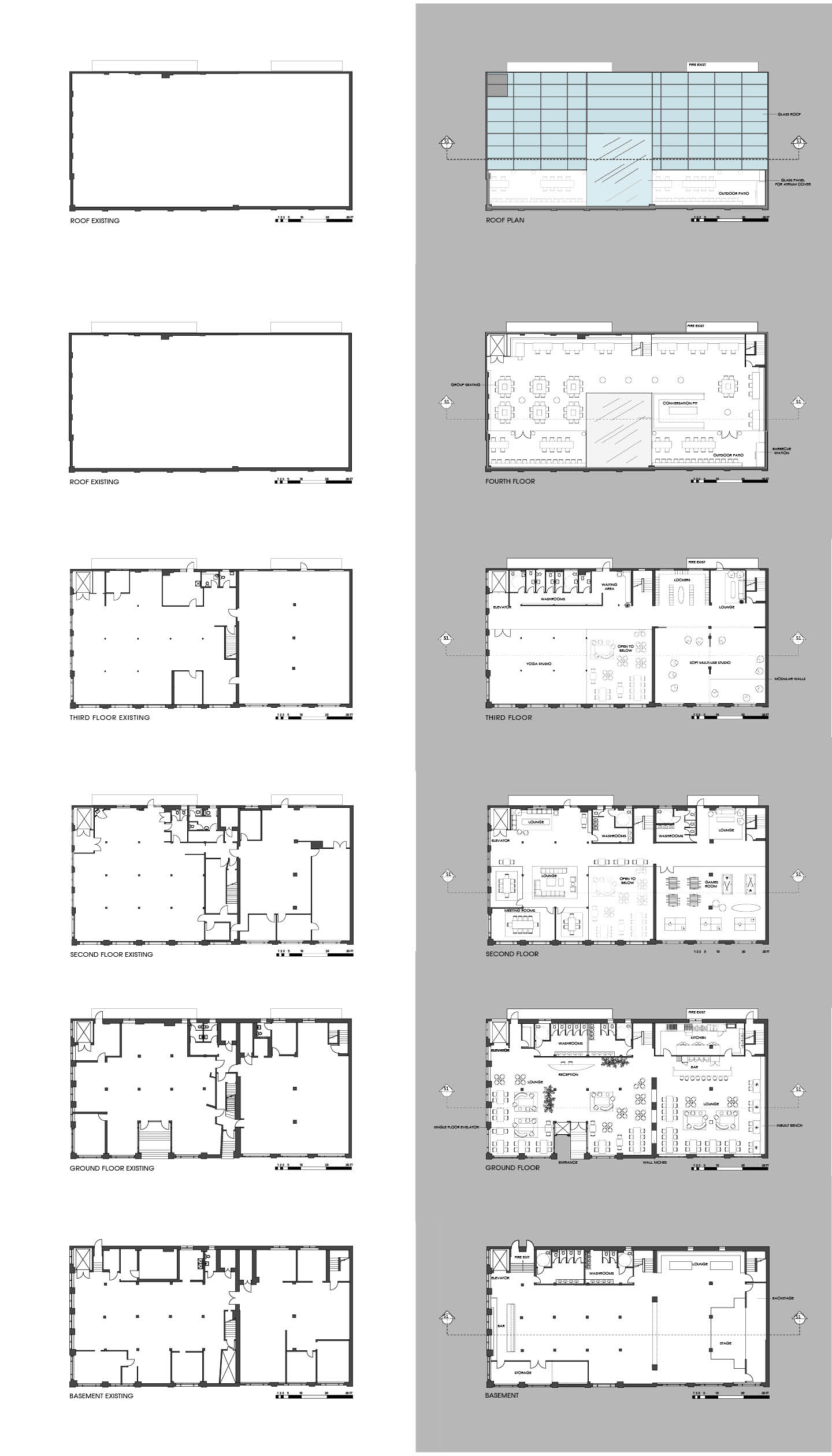
THE HUB: OCADU'S Interactive Student CentreTHESIS STATEMENTI took on the challenge of designing a student center for OCAD University as students need a space for interaction, particularly in the post-Covid era. This adaptive reuse project aims to transform Toronto's oldest costume shop into an interactive Student Center while preserving its historical value. My vision for this space is for it to be interactive on every level, hence, the most prominent design decision was to slice through the floors to allow for seamless viewing of activities. Through innovative design solutions, such as transforming the brick wall division into a feature atrium and seamlessly incorporating wooden columns from the past, the project will showcase the potential of adaptive reuse as a sustainable and cost-effective alternative to demolition and reconstruction. ABOUTIn the heart of Toronto’s Entertainment District, Harry Mallabar opened Toronto’s oldest costume shop during the 1950s. The building, located just a four-minute walk from OCAD University, is now on the market for $14,500,000. I selected this building as the site for my project not only for its proximity and price, but also for its historical significance. Instead of a demolitioning and reconstructing, my project will focus on adaptive reuse. The project is also an environmentally friendly proposal that enables passive cooling through the roof structure, circulating cool air throughout the interior spaces during the summer months.

“Designing the Future of OCAD | Prioritizing Student's Mental and Physical Health”

Share with someone

01 - For Jurying Consideration
01 - For Jurying Consideration
01 - For Jurying Consideration
01 - For Jurying Consideration
01 - For Jurying Consideration
01 - For Jurying Consideration
01 - For Jurying Consideration
01 - For Jurying Consideration
01 - For Jurying Consideration
01 - For Jurying Consideration
01 - For Jurying Consideration
01 - For Jurying Consideration
01 - For Jurying Consideration
01 - For Jurying Consideration
01 - For Jurying Consideration
01 - For Jurying Consideration

Work by

Jiya Puri

Interior Design

“Design is a fantasy turned into reality”