Kayla Wallace

Re-thinking the Limits of the Laneway House in Toronto: Achieving Access and Equity through Modularity

Environmental Design
2021
Affordable housing is not just an issue of economics or design, but an issue of social equity. Jane Jacobs’ highlights in ‘The Death and Life of Great American Cities’ that many public housing projects have resulted in racially isolated communities as a result of poor design and the lack of understanding social equality. Historically, lower-income communities and racialized groups have often fallen victim to exclusionary covenants around housing and home ownership. This exclusionary notion of property, both historic and contemporary, has disproportionately targeted racialized and immigrant communities. By challenging this same notion in Toronto's Laneway policies, the idea of true affordability and equity in housing could become a reality for Toronto residents.It has been proven that we can lead healthy, fulfilling lives only when we have a stable home and equitable environment. However, bargaining people off with promise of just the basic needs is not equity. Attaining thisrequires us to think beyond the usual building typologies that we are familiar with. And more importantly, deconstructing the stereotypes we have about what ‘affordable housing’ is.Laneways have the potential to be a site used to respond to covertly the violent ways that developments and condominiums have pushed lower income communities out of the city and further away from access to programming and jobs.

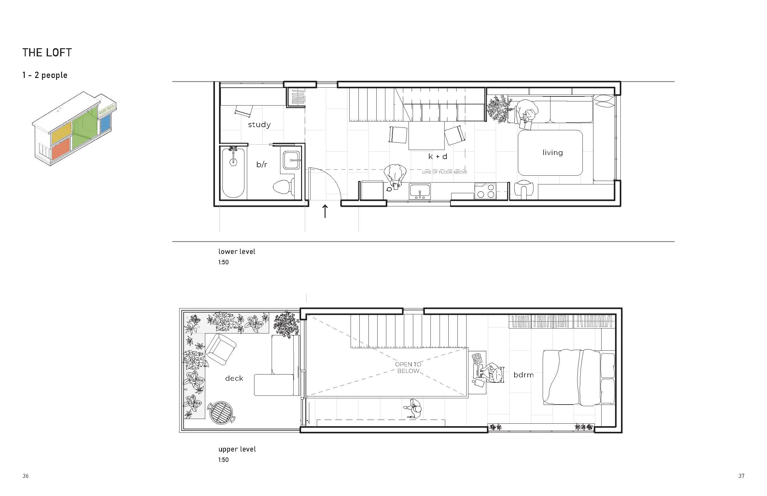
“This thesis proposes prototypical housing that utilizes the air rights above Toronto’s laneways to provide affordable housing units for households. By using the air space already owned by the city, the cost of land is removed from the overall housing cost. Thus, providing an opportunity for truly affordable housing units that incorporate outdoor spaces and amenities that contribute to social equity.”

Share with someone

Re-thinking the Limits of the Laneway House in Toronto: Achieving Access and Equity through Modularity
Re-thinking the Limits of the Laneway House in Toronto: Achieving Access and Equity through Modularity
Re-thinking the Limits of the Laneway House in Toronto: Achieving Access and Equity through Modularity
Re-thinking the Limits of the Laneway House in Toronto: Achieving Access and Equity through Modularity
Re-thinking the Limits of the Laneway House in Toronto: Achieving Access and Equity through Modularity
Re-thinking the Limits of the Laneway House in Toronto: Achieving Access and Equity through Modularity
Re-thinking the Limits of the Laneway House in Toronto: Achieving Access and Equity through Modularity
Re-thinking the Limits of the Laneway House in Toronto: Achieving Access and Equity through Modularity
Re-thinking the Limits of the Laneway House in Toronto: Achieving Access and Equity through Modularity
Re-thinking the Limits of the Laneway House in Toronto: Achieving Access and Equity through Modularity
Re-thinking the Limits of the Laneway House in Toronto: Achieving Access and Equity through Modularity
Re-thinking the Limits of the Laneway House in Toronto: Achieving Access and Equity through Modularity
Re-thinking the Limits of the Laneway House in Toronto: Achieving Access and Equity through Modularity
Re-thinking the Limits of the Laneway House in Toronto: Achieving Access and Equity through Modularity
Re-thinking the Limits of the Laneway House in Toronto: Achieving Access and Equity through Modularity
Re-thinking the Limits of the Laneway House in Toronto: Achieving Access and Equity through Modularity

Work by

Kayla Wallace