Faculty of Design

Environmental Design

Caroline Small

Double Decker

Environmental Design
2020
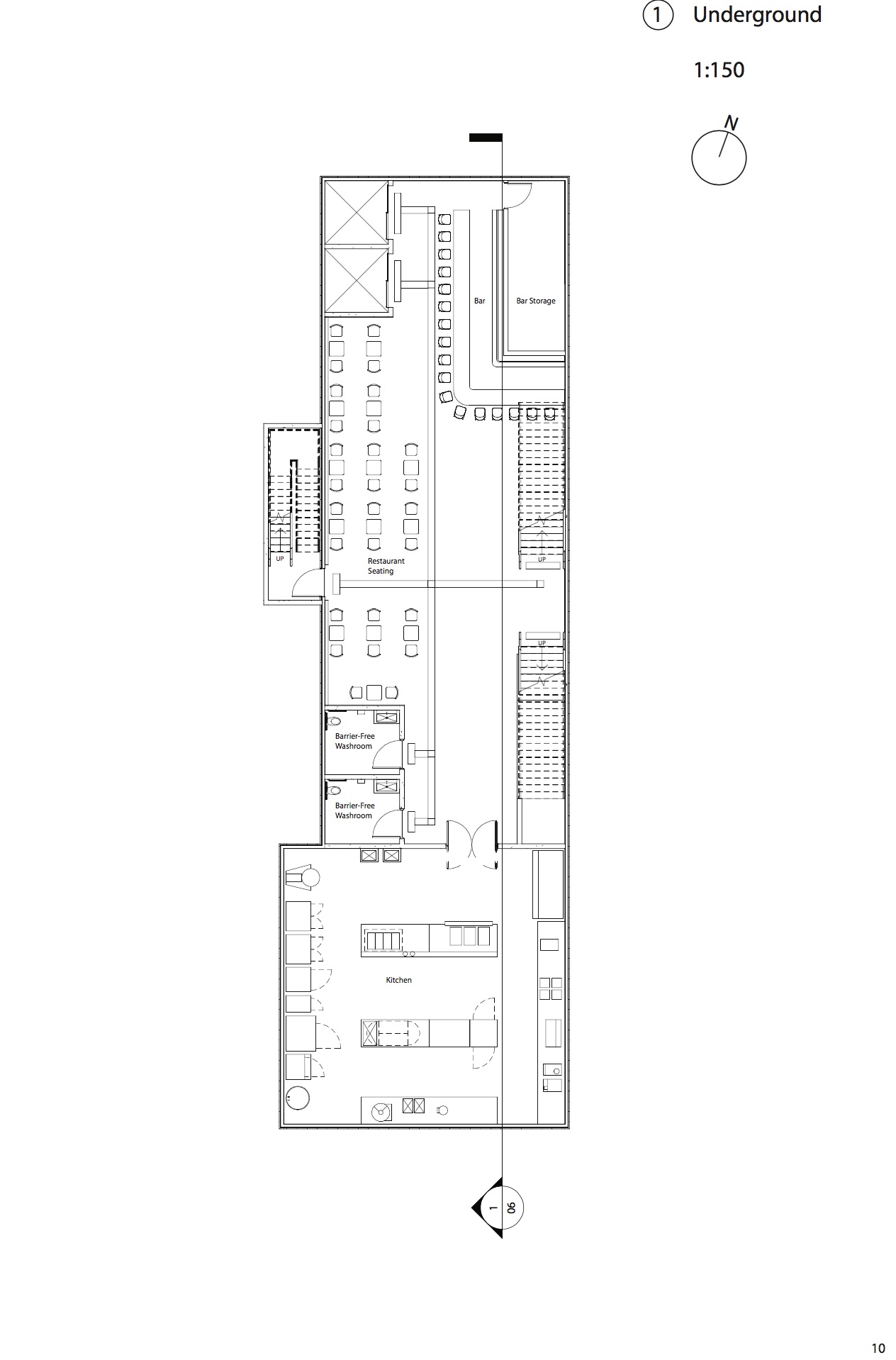
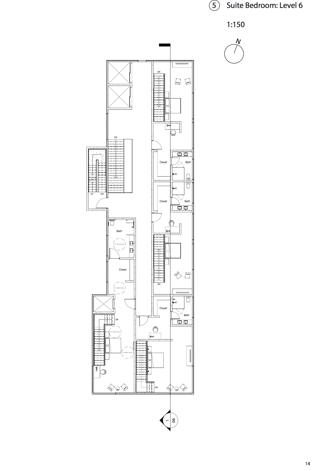
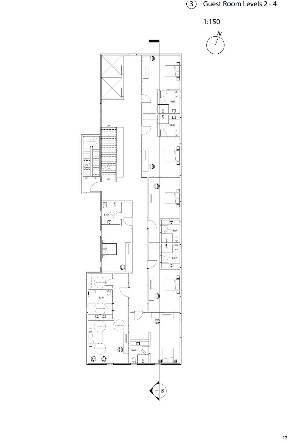
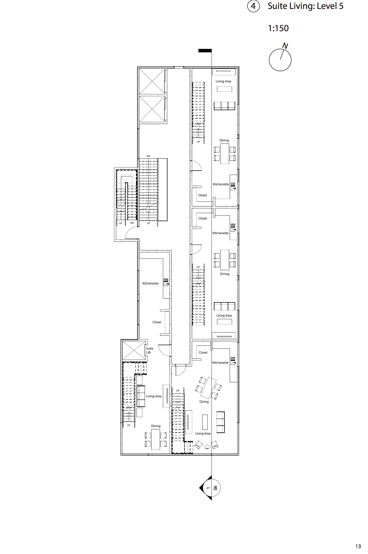
Double Decker is located on 460 King St W, Toronto, Ontario. The hotel features a lobby, restaurant, and suites, and carries a British public transportation theme throughout every space.Project collaboration with Benedict So.

“Our concept is based on the design of the London Double Decker bus. Since its design allows for a greater volume to move through narrow spaces, the design works well for our hotel site as it maximizes space vertically. Lower levels promote ease of transportation and accessibility while upper levels pertain to viewing spaces. By applying elements of the bus and public transportation services into the hotel space, we can introduce the nostalgia and connection of the London Double Decker into the city.Elements such as colour, materiality, furnishings, decorative, and structural bus-inspired components will be implemented to replicate the bus experience. Aside from this, the overall British theme will be used throughout the hotel, such as the lower level restaurant service space: The Underground. It will be in ode to the London Tube through lighting, tile, stair and curved wall designs. The British theme continues through to the food and drinks including pastries and tea.Overall, our concept is British-based, shown through various types of transportation which are efficient and dynamic. Like all travellers who are constantly moving, The Double Decker serves as a stop for individuals seeking sojourn.”

Share with someone

Double Decker
Double Decker
Double Decker
Double Decker
Double Decker
Double Decker
Double Decker
Double Decker
Double Decker
Double Decker
Double Decker
Double Decker
Double Decker
Double Decker
Double Decker
Double Decker
Double Decker
Double Decker
Double Decker
Double Decker
Double Decker
Double Decker
Double Decker
Double Decker
Double Decker
Double Decker
Double Decker
Double Decker
Double Decker
Double Decker
Double Decker
Double Decker
Double Decker
Double Decker
Double Decker
Double Decker
Double Decker
Double Decker
Double Decker
Double Decker
Double Decker
Double Decker

Work by

Caroline Small

Environmental Design

“I am interested in nature because I feel as though I am heavily influenced by it. The connection between urbanism and nature has always intrigued me and I want to be able to improve both. ”