Ruqaya Al-Zaidan

A Dual-Function Design for Community and Learning

Interior Design
2025
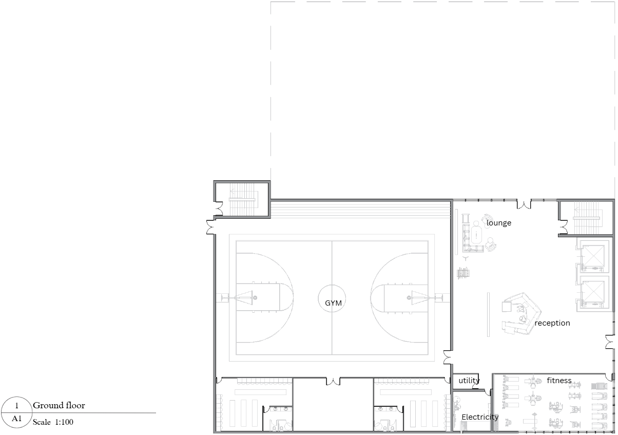
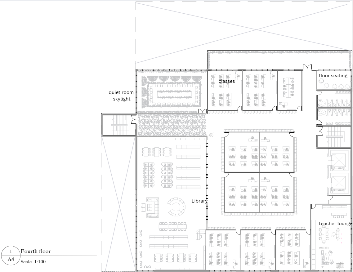
In this project, I explored the integration of community spaces and learning environments into a cohesive, dual-function design. The aim was to create an interior that serves both educational and social functions, enhancing collaboration and learning in a flexible and adaptive space. Sustainable materials were prioritized, and biophilic design elements were incorporated to promote mental well-being and creativity. The result is a space that adapts to various activities, from workshops and seminars to informal community gatherings.

“The design is rooted in the principles of sustainability, adaptability, and community engagement. My goal was to address the need for multi-use spaces that are both functional and inviting. The design fosters interaction, enhances productivity, and creates a sense of belonging, ultimately bridging the gap between education and community. The concept utilizes eco-friendly materials, and a color palette inspired by nature, emphasizing tranquility and focus.”

Share with someone

A Dual-Function Design for Community and Learning
A Dual-Function Design for Community and Learning
A Dual-Function Design for Community and Learning
A Dual-Function Design for Community and Learning
A Dual-Function Design for Community and Learning
A Dual-Function Design for Community and Learning
A Dual-Function Design for Community and Learning
A Dual-Function Design for Community and Learning
A Dual-Function Design for Community and Learning
A Dual-Function Design for Community and Learning
A Dual-Function Design for Community and Learning
A Dual-Function Design for Community and Learning
A Dual-Function Design for Community and Learning
A Dual-Function Design for Community and Learning
A Dual-Function Design for Community and Learning
A Dual-Function Design for Community and Learning
A Dual-Function Design for Community and Learning
A Dual-Function Design for Community and Learning
A Dual-Function Design for Community and Learning
A Dual-Function Design for Community and Learning
A Dual-Function Design for Community and Learning
A Dual-Function Design for Community and Learning
A Dual-Function Design for Community and Learning
A Dual-Function Design for Community and Learning
A Dual-Function Design for Community and Learning
A Dual-Function Design for Community and Learning
A Dual-Function Design for Community and Learning
A Dual-Function Design for Community and Learning
A Dual-Function Design for Community and Learning
A Dual-Function Design for Community and Learning
A Dual-Function Design for Community and Learning
A Dual-Function Design for Community and Learning
A Dual-Function Design for Community and Learning
A Dual-Function Design for Community and Learning
A Dual-Function Design for Community and Learning
A Dual-Function Design for Community and Learning
A Dual-Function Design for Community and Learning
A Dual-Function Design for Community and Learning

Work by

Ruqaya Al-Zaidan aka. sunszn

Environmental Design - Interior Design Specialization

“Plant whisperer meets space transformer! I turn stuffy rooms into wild sanctuaries where walls breathe and floors bloom. Nature isn't just my inspiration—it's my co-designer! Ready to make interiors...” [More]