Peter Bianchin

The Transformation of Yorkville

Environmental Design
2021
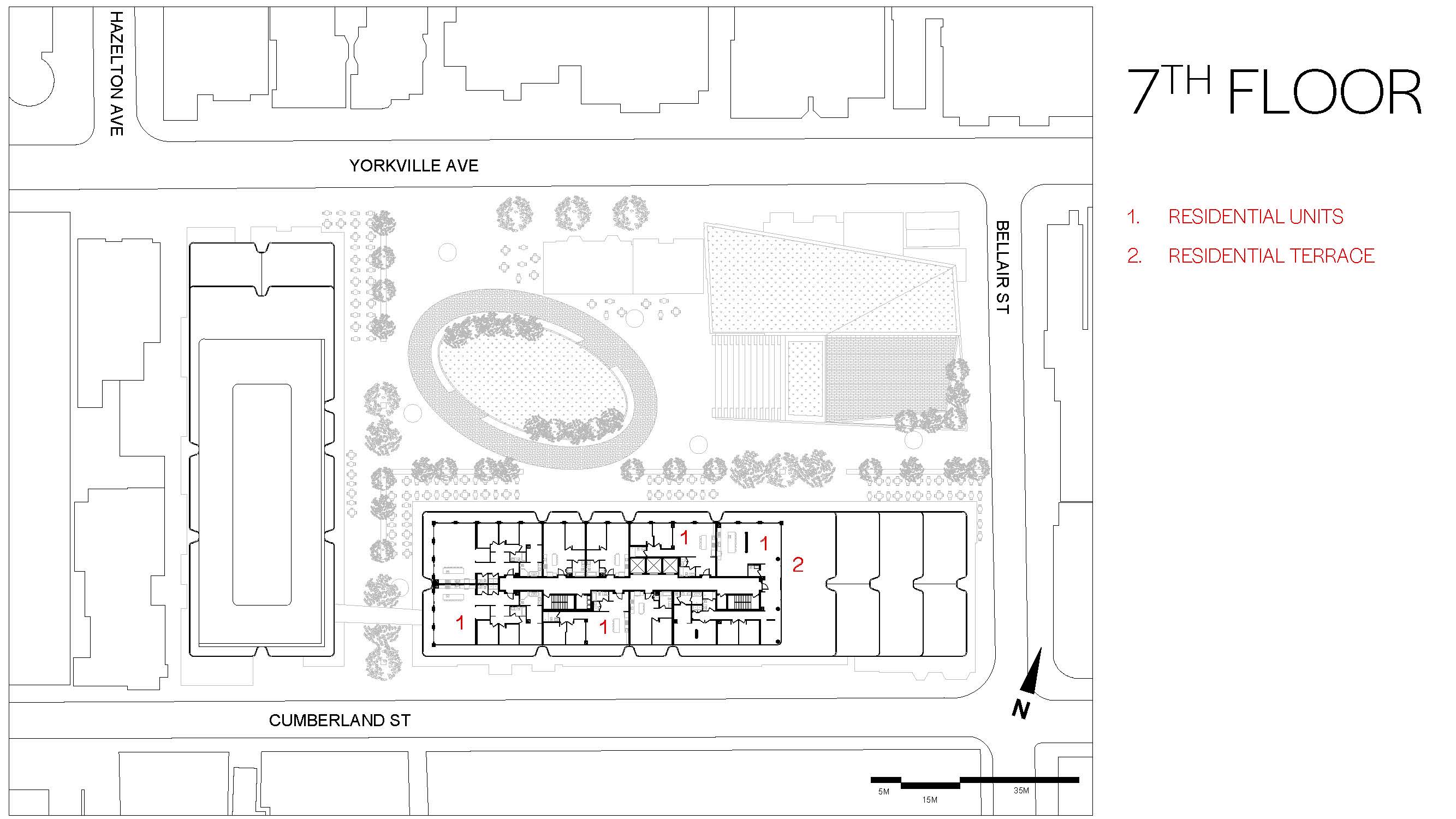
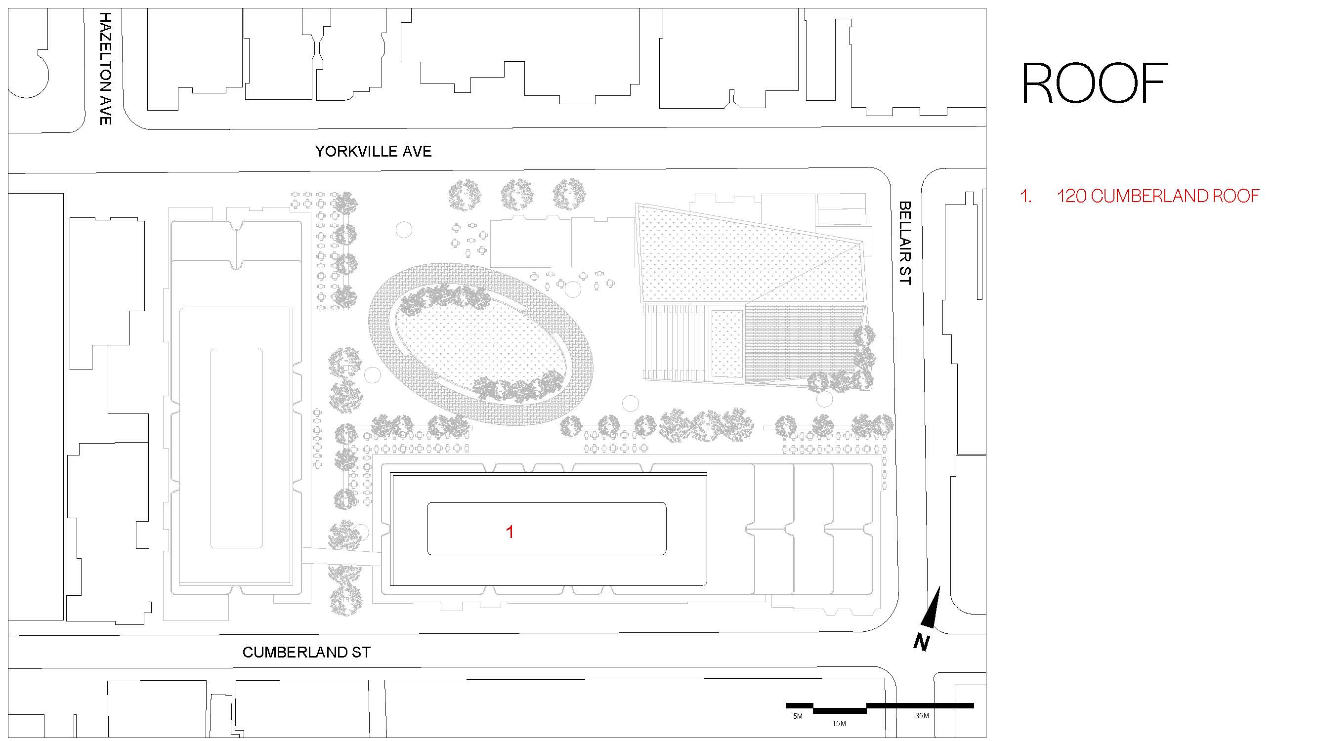
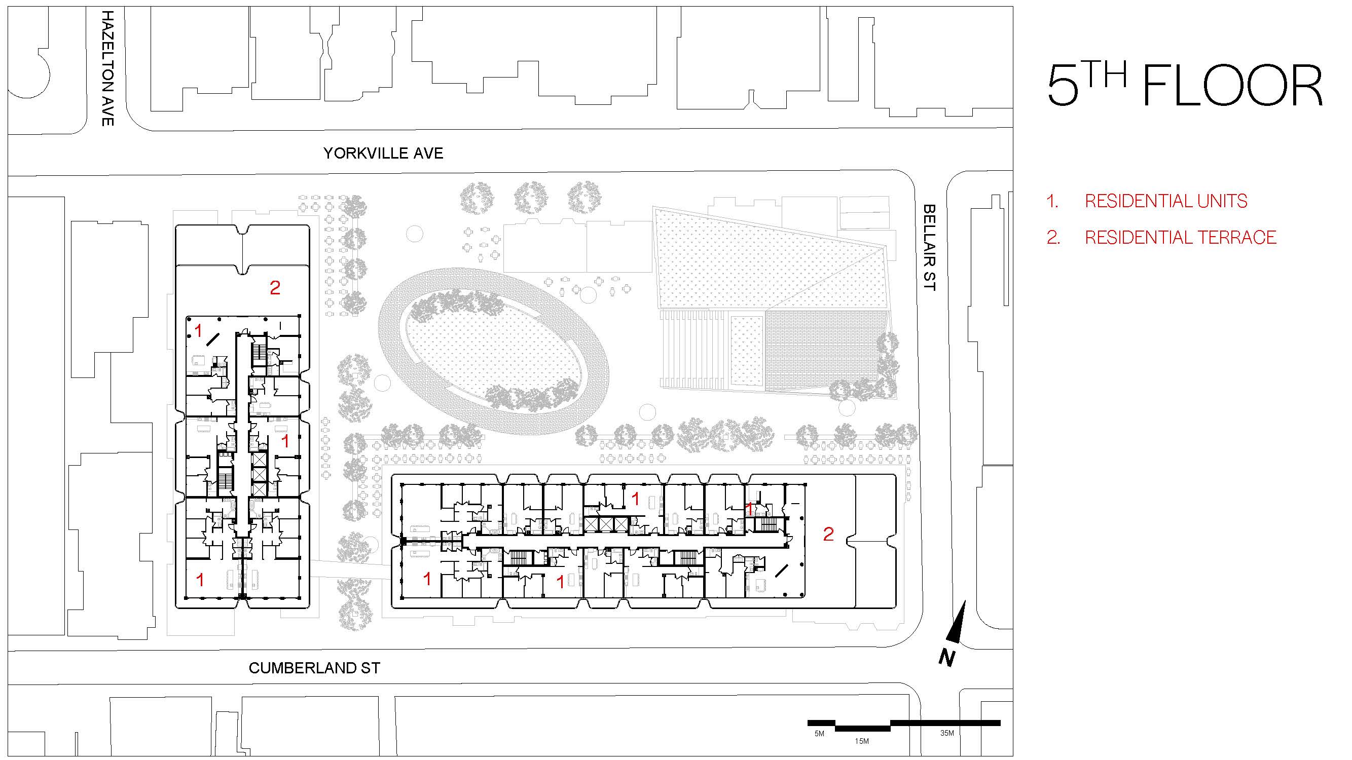
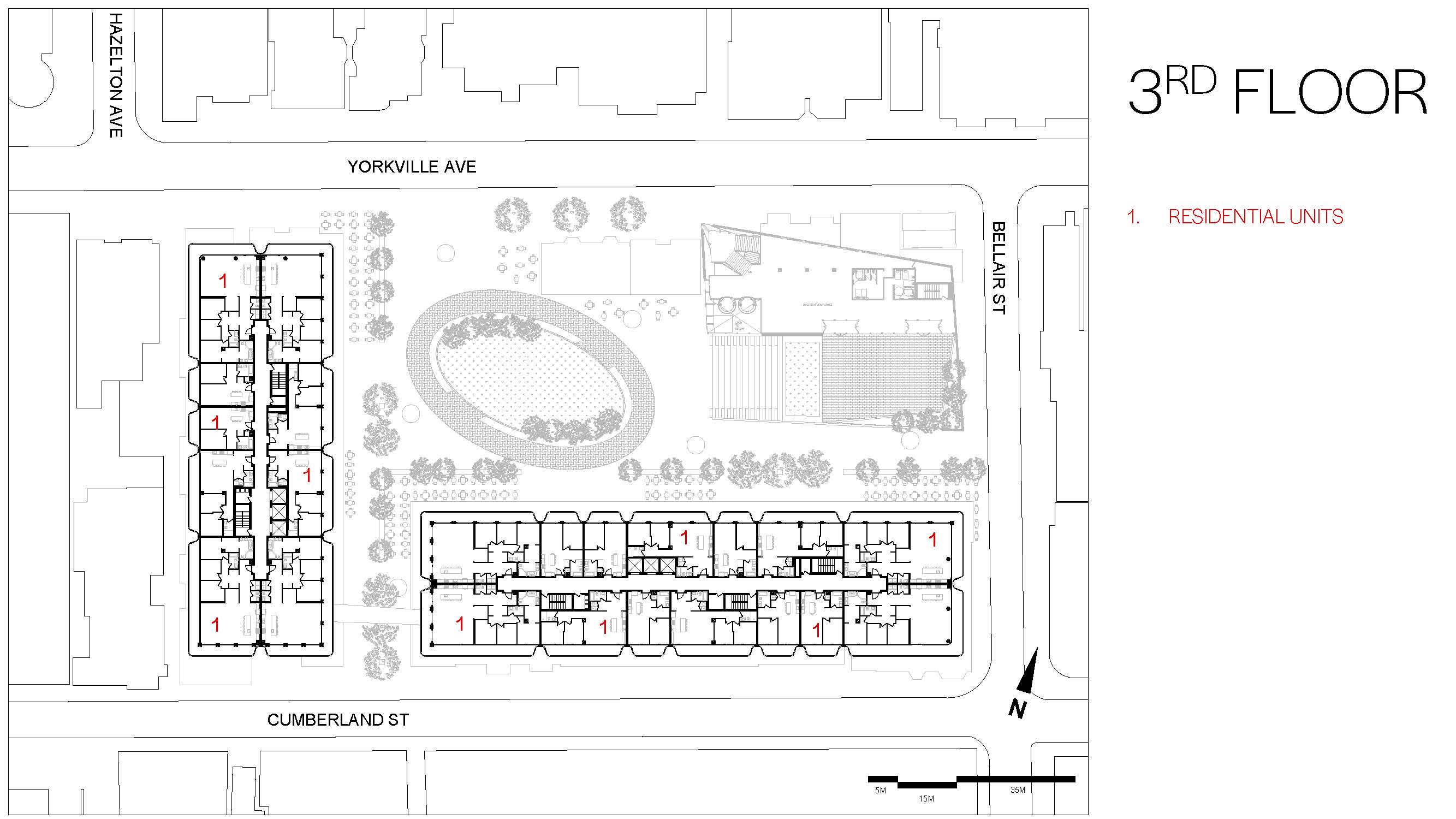
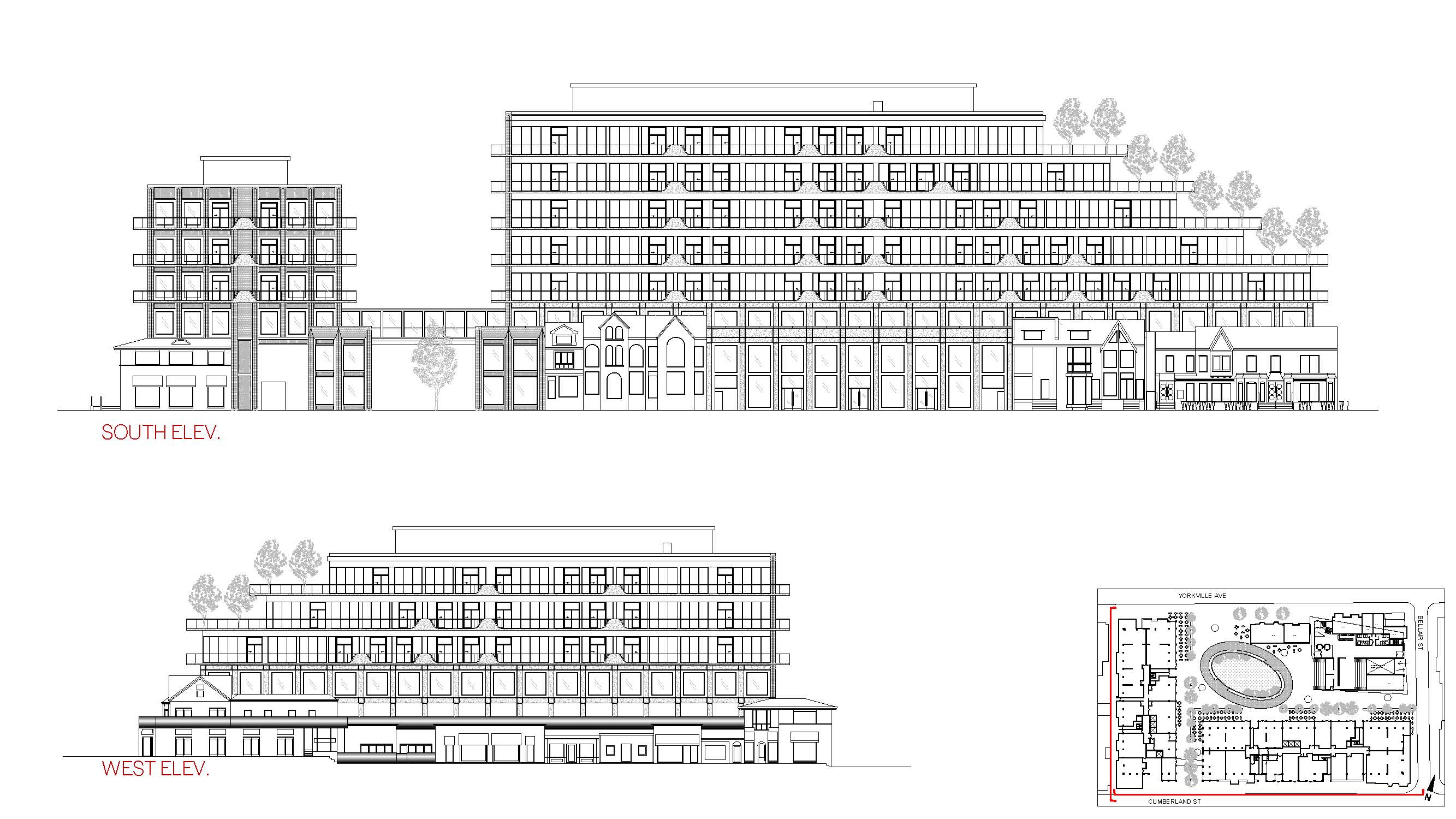
This 3 building development features two buildings for residential use and one for commercial. The residential buildings include various size condo units and an abundance of amenities, as well as ground floor retail and restaurant spaces. The commercial building is home to a presentation and gallery centre, where public displays and events can take place. These buildings surround a central square in the heart of Yorkville, in which restaurants, shops, plenty of seating, and an outdoor theatre spill into open space, creating a central gathering space for the surrounding community.

Share with someone

The Transformation of Yorkville
The Transformation of Yorkville
The Transformation of Yorkville
The Transformation of Yorkville
The Transformation of Yorkville
The Transformation of Yorkville
The Transformation of Yorkville
The Transformation of Yorkville
The Transformation of Yorkville
The Transformation of Yorkville
The Transformation of Yorkville
The Transformation of Yorkville
The Transformation of Yorkville
The Transformation of Yorkville
The Transformation of Yorkville
The Transformation of Yorkville
The Transformation of Yorkville
The Transformation of Yorkville
The Transformation of Yorkville
The Transformation of Yorkville
The Transformation of Yorkville
The Transformation of Yorkville
The Transformation of Yorkville
The Transformation of Yorkville
The Transformation of Yorkville
The Transformation of Yorkville
The Transformation of Yorkville
The Transformation of Yorkville
The Transformation of Yorkville
The Transformation of Yorkville
The Transformation of Yorkville
The Transformation of Yorkville
The Transformation of Yorkville
The Transformation of Yorkville
The Transformation of Yorkville
The Transformation of Yorkville
The Transformation of Yorkville
The Transformation of Yorkville
The Transformation of Yorkville
The Transformation of Yorkville
The Transformation of Yorkville
The Transformation of Yorkville
The Transformation of Yorkville
The Transformation of Yorkville
The Transformation of Yorkville
The Transformation of Yorkville
The Transformation of Yorkville
The Transformation of Yorkville
The Transformation of Yorkville
The Transformation of Yorkville
The Transformation of Yorkville
The Transformation of Yorkville

Work by

Peter Bianchin

Architecture/Design

“ Looking forward to the future of architecture, design, and development throughout the world.”