Faculty of Design
Environmental Design
Emma Di Girolamo
Fitting Into The Role
Environmental Design
2024
The adaptive reuse of cultural and historical buildings to fit a new role in the community.
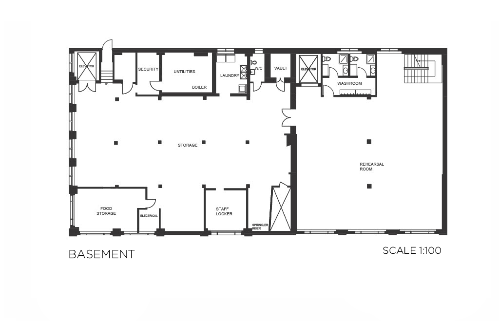
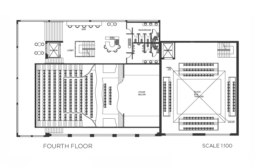
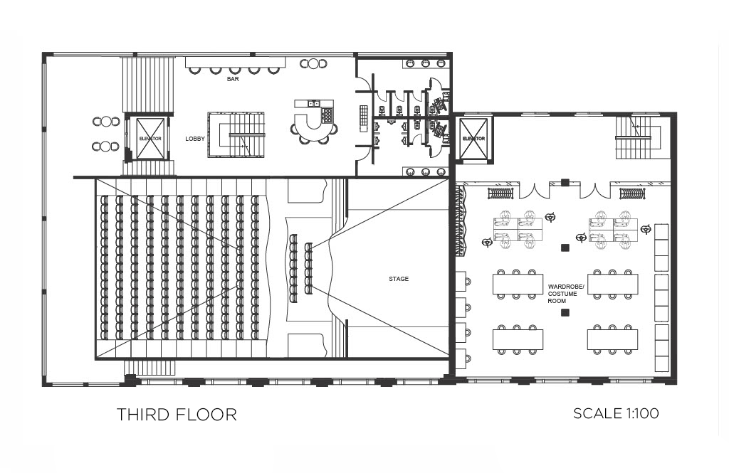
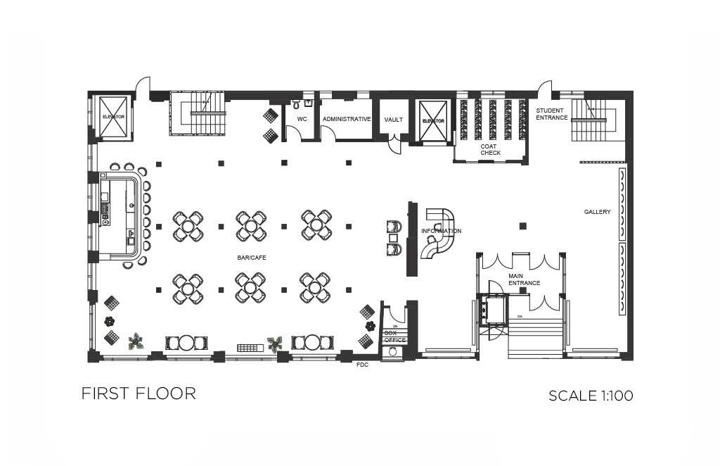
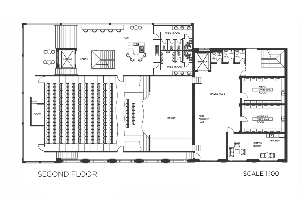
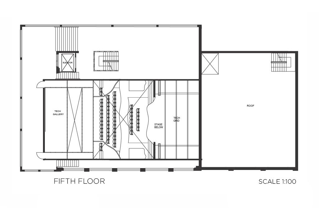
“A growing problem in many cities including Toronto is what do we do with cultural and historical buildings when they are no longer most effective in their originally intended purpose. This has caused many historical buildings in Toronto to be torn down, losing the rich cultural and historical landmarks that define a city and community. Using adaptive reuse allows architecture to connect communities to the past while also creating new functions for the future. Adaptive reuse is a sustainable option that allows for minimal waste and reduces negative environmental impacts. The adaptive reuse of 14 McCaul street to create a new theatre department space for OCADU allows for the history of the building to be continued in a new design. The building built in 1914, was famously known as a staple in the community for being a theatrical costume shop for many decades. The design includes a theatre and educational spaces for OCADU, with a 300 seat theatre allowing for both school and community uses. The design divides public and private spaces, with some shared spaces. There is an existing thick brick wall in the middle of the space which is utilised as a divider for the school space and the theatre space. Working within the constraints of the existing building is challenging, as fitting a program into a space that it was not originally intended for can be difficult. The solution was to add onto the south side and west side of the building which allows for the new spaces to fit. The design includes a cafe, gallery, 300 seat theatre, costume classroom and black box theatre, that fulfils the needs of the school.”

Celebrate the work of OCAD U’s class of 2023/2024!