Jiahua Liu

Feel The Vitality

Environmental Design
2025
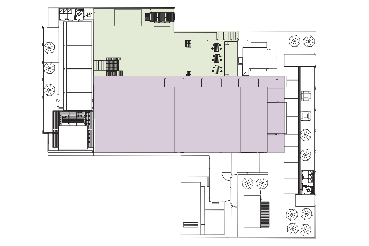
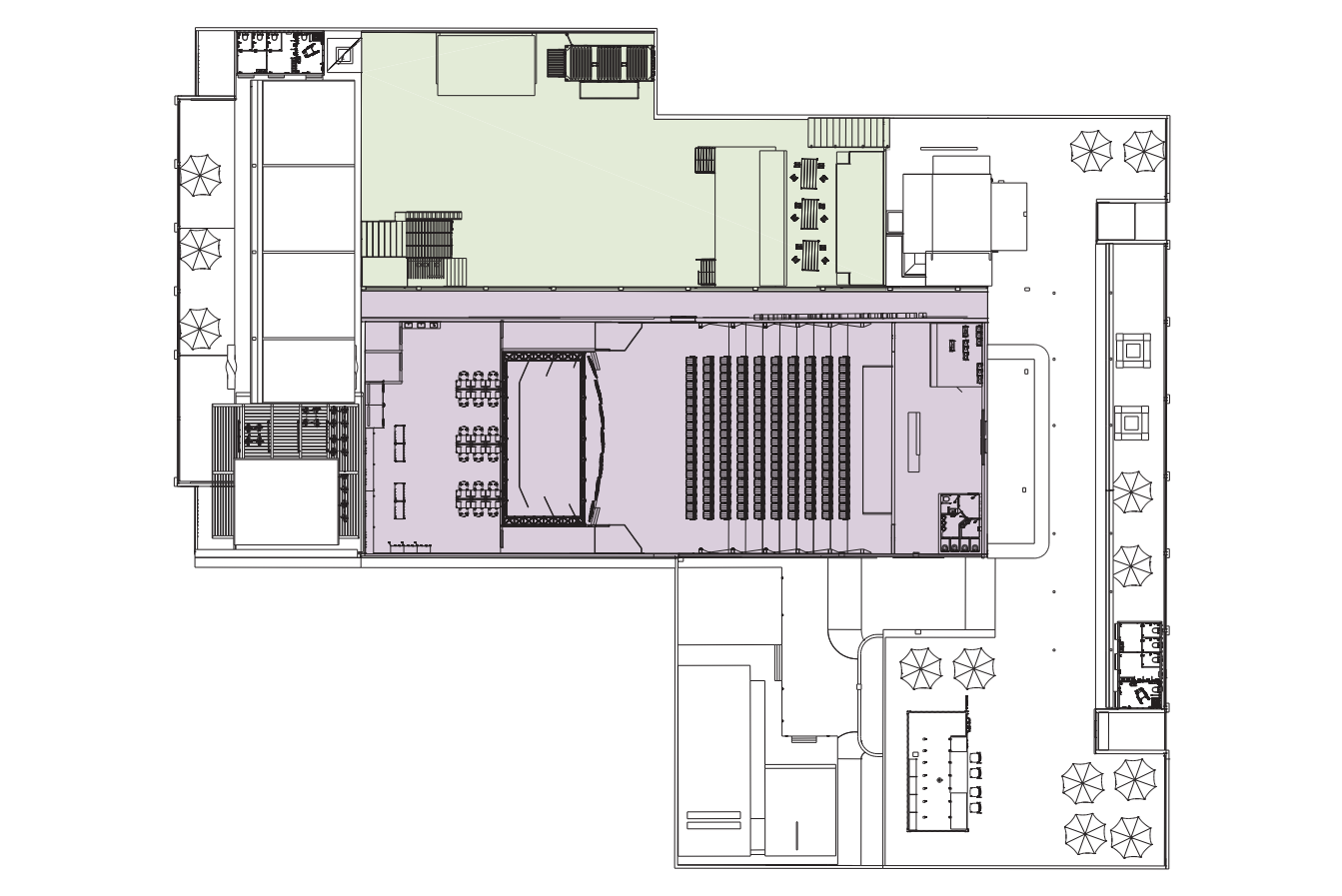
This project reimagines the Kensington Market parking garage rooftop as a year-round cultural venue that expands space for local festivals and artists. It balances vibrant street energy with community comfort, preserving the neighborhood’s authentic rhythm.

“By utilizing the vacant rooftop of the Parking garage to create a year-round event space for visitors and locals to enjoy the festival, it will help visitors understand and immerse themselves in Kensington market's unique festival culture and arts scene, while taking into account the experiences of the local residents, thus preserving and celebrating the market's traditional festival space and culture. Combining a distinctive street style and market atmosphere expands the limited space available for local artists to perform, while remaining within the comfort zone of residents and artists.”

Share with someone

Feel The Vitality
Feel The Vitality
Feel The Vitality
Feel The Vitality
Feel The Vitality
Feel The Vitality
Feel The Vitality
Feel The Vitality
Feel The Vitality
Feel The Vitality
Feel The Vitality
Feel The Vitality
Feel The Vitality
Feel The Vitality
Feel The Vitality
Feel The Vitality
Feel The Vitality
Feel The Vitality
Feel The Vitality
Feel The Vitality
Feel The Vitality
Feel The Vitality
Feel The Vitality
Feel The Vitality
Feel The Vitality
Feel The Vitality
Feel The Vitality
Feel The Vitality
Feel The Vitality
Feel The Vitality
Feel The Vitality
Feel The Vitality
Feel The Vitality
Feel The Vitality
Feel The Vitality
Feel The Vitality
Feel The Vitality
Feel The Vitality

Work by

Jiahua Liu aka. Joy

Environmental Design - Interior Design Specialization

“Space shapes experience, experience shapes perception, and perception shapes life.”