Faculty of Design
Environmental Design - Interior Design Specialization
Anastasiia Teres
Empathy Centre for OCAD U
Interior Design
2022
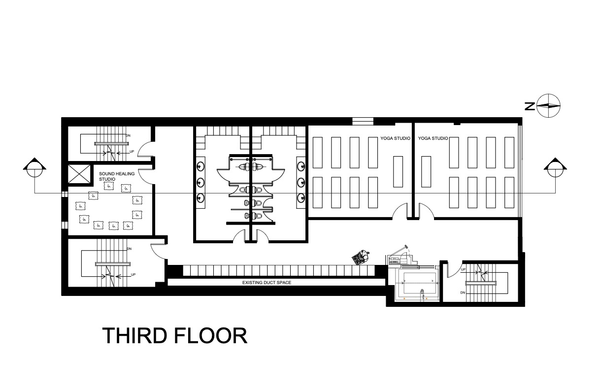
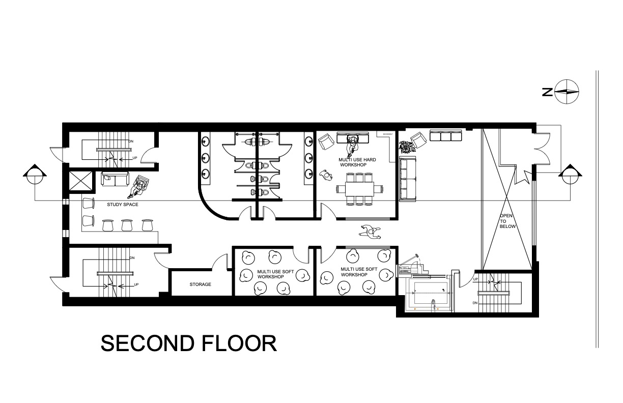
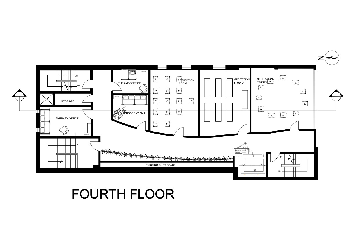
As my thesis project I wanted to create a place where OCAD students will feel save, place that would give them comfort and support that they need. This project started from my own feelings and needs. In hard times, I felt that I needed a place, where I could go and feel that sense of warm and comfort, somewhere were I could to talk to someone or even zone out in my own thoughts. I found out that I'm not the only one who felt that way during the university studies. That's how the idea of Empathy Centre was born. Space for students by student.
“ The psychological relief, happiness and stress relief can be supported by natural approach and details in the design of space. As my thesis project I want to create a space for OCAD students where they could find an acknowledgment of mental struggles, get a support, the space where students can be holistic with themselves. The idea to create an environment that tights together few departments such as counselling and wellness for students to find an inner peace and feel safe while they are looking for support and comfort. That could be achieved through the combination of multiple space programming such as active (yoga) and passive (counselling) and the choice of materials (natural) and forms (organic).”

Work by
Anastasiia Teres
Interior Design
“Most of art students are sensitive on the energetic level. So many of these students face the great deal of stress and emotional challenges that require extra care and work on stability of mental...” [More]
Celebrate the work of OCAD U’s class of 2021/2022!