Faculty of Design
Environmental Design
Safia Liman
Flowing Heritage
Environmental Design
2024
Revit, AutoCAD, Photoshop, Illustrator
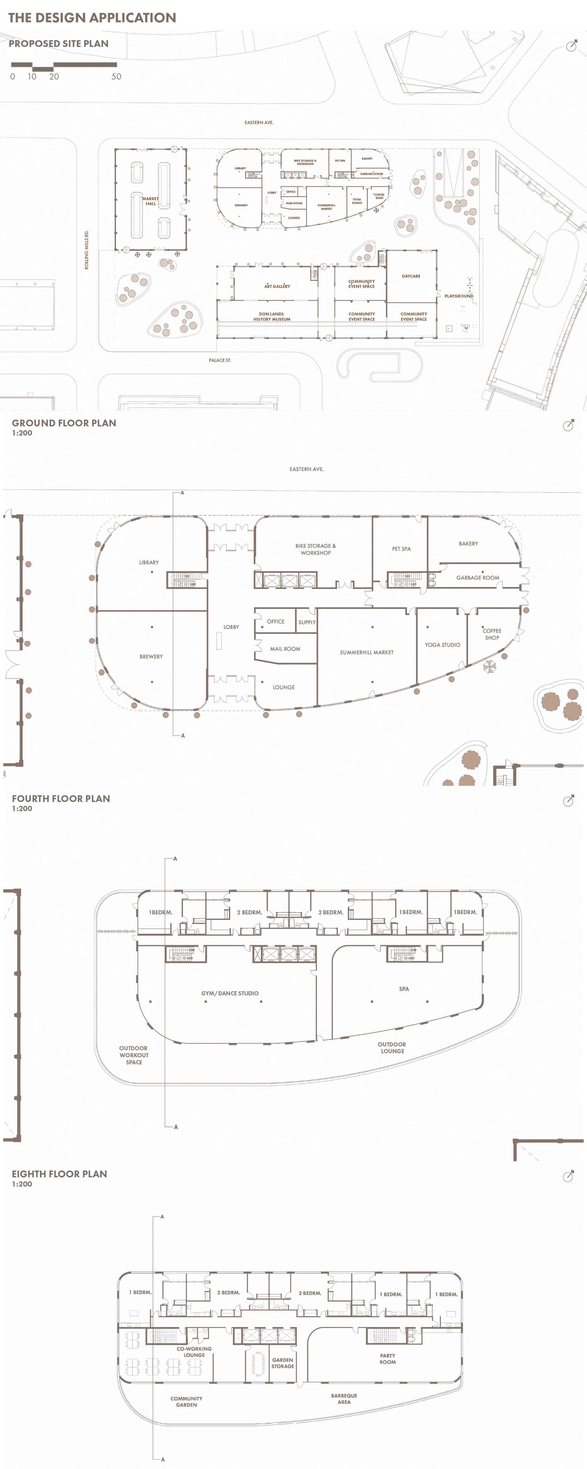
Reimagining the Dominion Wheel and Foundry Complex.The new design of the Dominion Wheel and Foundry Complex draws significant inspiration from its proximity to the Don River and Toronto’s waterfront. The design of the site integrates natural elements and fluidity into its architecture. Like flowing water, pedestrian walkways travel through the site, creating a sense of movement and connection. The landscaping and open spaces further enhance this fluidity, inviting residents and visitors to engage with the surroundings. The overall design reflects the dynamic energy of flowing water, with curved lines, organic shapes, and materials chosen to evoke a sense of fluid motion.The site is located at 153-185 Eastern Ave, Toronto, ON. It is near landmarks such as the Distillery District, Underpass Market, and St. Lawrence Market. Creating a solid-void map analyzes the surrounding forms, identifying opportunities for connectivity, focal points, and spatial relationships. The heritage study depicts the heritage buildings within the surrounding context. These heritage structures ground the site within its historical narrative, informing design decisions that respect the neighbourhood’s heritage. The density study provides insight into the distribution of building heights in the vicinity, informing the scale and massing of proposed structures.Emphasis is placed on preserving the character and history of the existing buildings on site while meeting the community's needs. Incorporating mixed-use spaces on the ground level adds vibrancy and functionality to the area, with commercial establishments catering to the needs of community members and residents, enhancing street-level activity. Additionally, amenities for residents are distributed throughout the building, promoting a sense of community and well-being.
“Infusing infill housing within a rich historical context creates meaning and significance within communities while fostering a sense of connection to the past.”

Celebrate the work of OCAD U’s class of 2023/2024!