Gradex banner
Faculty of Design

Environmental Design

Kidist Workneh Ayalew

EMBRACE

Environmental Design
2023
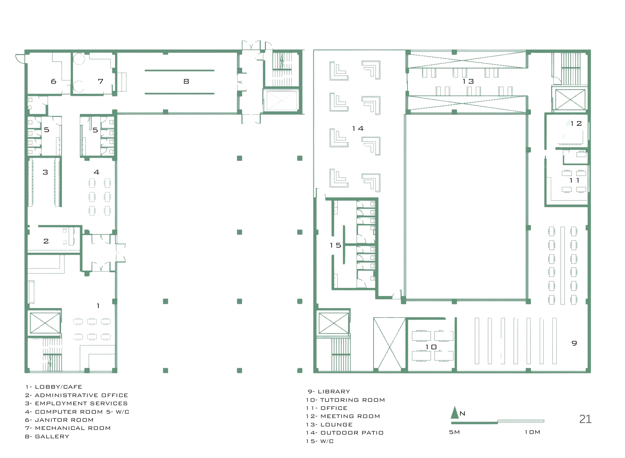
Shaped like a welcoming embrace, this community centre in Parkdale fosters unity and offers residences with facilities necessary for their success in a gentrified area.

Share with someone

EMBRACE
EMBRACE
EMBRACE
EMBRACE
EMBRACE
EMBRACE
EMBRACE
EMBRACE
EMBRACE
EMBRACE
EMBRACE
EMBRACE

Work by

Kidist Workneh Ayalew

Environmental Design