Gradex banner
Faculty of Design

Environmental Design

Luke-Philip Seibt

Designing for All: A Universally Accessible Learning Environment

Interior Design
2023
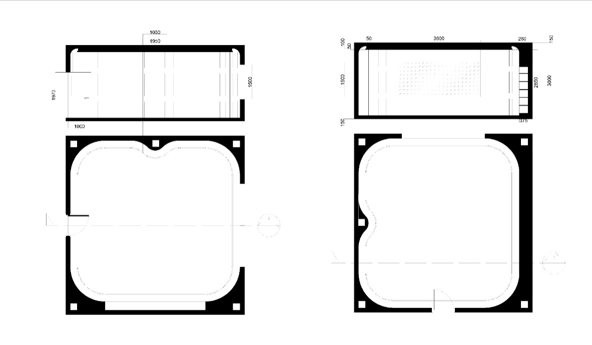
This project proposes a universally accessible classroom that reimagines traditional educational environments through the lens of Universal Design for Learning (UDL). Designed for a smaller class size of 15 students within a 50m² footprint, the space emphasizes inclusion, flexibility, and sensory accessibility. Drawing from standards such as the Ontario Building Code (OBC), Accessibility for Ontarians with Disabilities Act (AODA), and UDL principles, the proposal includes detailed specifications for finishes, lighting, furniture, and assistive technology integration. The design focuses on eliminating physical and cognitive barriers to create a dynamic, inclusive, and supportive learning space. Through precedent research, personalized rationale, and a full set of visuals, including presentation boards, drawings, and renders. This project envisions the classroom not only as a place of instruction but as an active agent in equitable education.

“Project StatementDesigning for All explores how architectural design can better serve students of diverse abilities by embedding accessibility into every aspect of the classroom environment. Inspired by Universal Design for Learning principles, the proposal shifts away from traditional one-size-fits-all models and instead emphasizes flexible learning layouts, inclusive technology, and sensory-considerate design.This classroom is tailored to accommodate students with mobility impairments, visual challenges, and varying learning styles through features such as height-adjustable furniture, non-reflective surfaces, and customizable lighting. Beyond meeting code, the design reflects a pedagogical shift: smaller class sizes allow for deeper connection, collaboration, and personalized education, values essential for inclusive learning.Guided by best practices and informed by the real world, this project envisions the classroom as a space that adapts to its learners, supports diverse expression, and promotes equity through thoughtful design. It is not only a space to learn, but a place that teaches about accessibility, empathy, and innovation.”

Share with someone

Designing for All: A Universally Accessible Learning Environment
Designing for All: A Universally Accessible Learning Environment
Designing for All: A Universally Accessible Learning Environment
Designing for All: A Universally Accessible Learning Environment
Designing for All: A Universally Accessible Learning Environment
Designing for All: A Universally Accessible Learning Environment
Designing for All: A Universally Accessible Learning Environment
Designing for All: A Universally Accessible Learning Environment
Designing for All: A Universally Accessible Learning Environment
Designing for All: A Universally Accessible Learning Environment
Designing for All: A Universally Accessible Learning Environment
Designing for All: A Universally Accessible Learning Environment
Designing for All: A Universally Accessible Learning Environment
Designing for All: A Universally Accessible Learning Environment
Designing for All: A Universally Accessible Learning Environment
Designing for All: A Universally Accessible Learning Environment
Designing for All: A Universally Accessible Learning Environment
Designing for All: A Universally Accessible Learning Environment
Designing for All: A Universally Accessible Learning Environment
Designing for All: A Universally Accessible Learning Environment
Designing for All: A Universally Accessible Learning Environment
Designing for All: A Universally Accessible Learning Environment
Designing for All: A Universally Accessible Learning Environment
Designing for All: A Universally Accessible Learning Environment
Designing for All: A Universally Accessible Learning Environment
Designing for All: A Universally Accessible Learning Environment

Work by

Luke-Philip Seibt

Architecture + Landscape Architecture

“To design sustainably is to listen to the land, to culture, to the ecosystems and to those often left at the margins. I aim to create inclusive spaces that breathe with their environment and hold...” [More]