Gradex banner

Amy Kim

To Be Filled: A Place Where Jeong (정) Resides

Other
2025
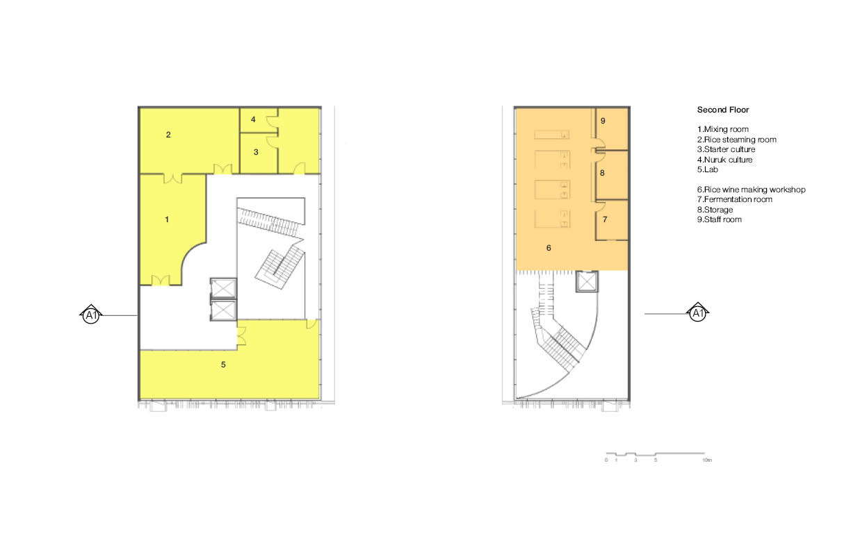
My thesis aims to preserve and reinterpret the cultural traces left by the Korean community in Toronto’s declining downtown Koreatown. Through fermentation, I seek to restore and solidify the neighborhood’s identity, allowing cultural memory to evolve.

Share with someone

Fermentation House
Fermentation House
ll
ll
ll
ll
ll
ll
ll
ll
ll
ll
ll
ll
ll
ll
ll
ll
ll
ll
ll
ll
ll
ll
ll
ll
ll
ll
ll
ll
ll
ll
ll
ll
ll
ll
ll
ll
ll
ll
ll
ll
ll
ll
ll
ll
ll
ll
ll
ll
ll
ll

Work by

Amy Kim