Gradex banner
Faculty of Design

Environmental Design

Anisha .

Shared: A Trauma-Informed Typology for Invisible Disabilities

Environmental Design
2023
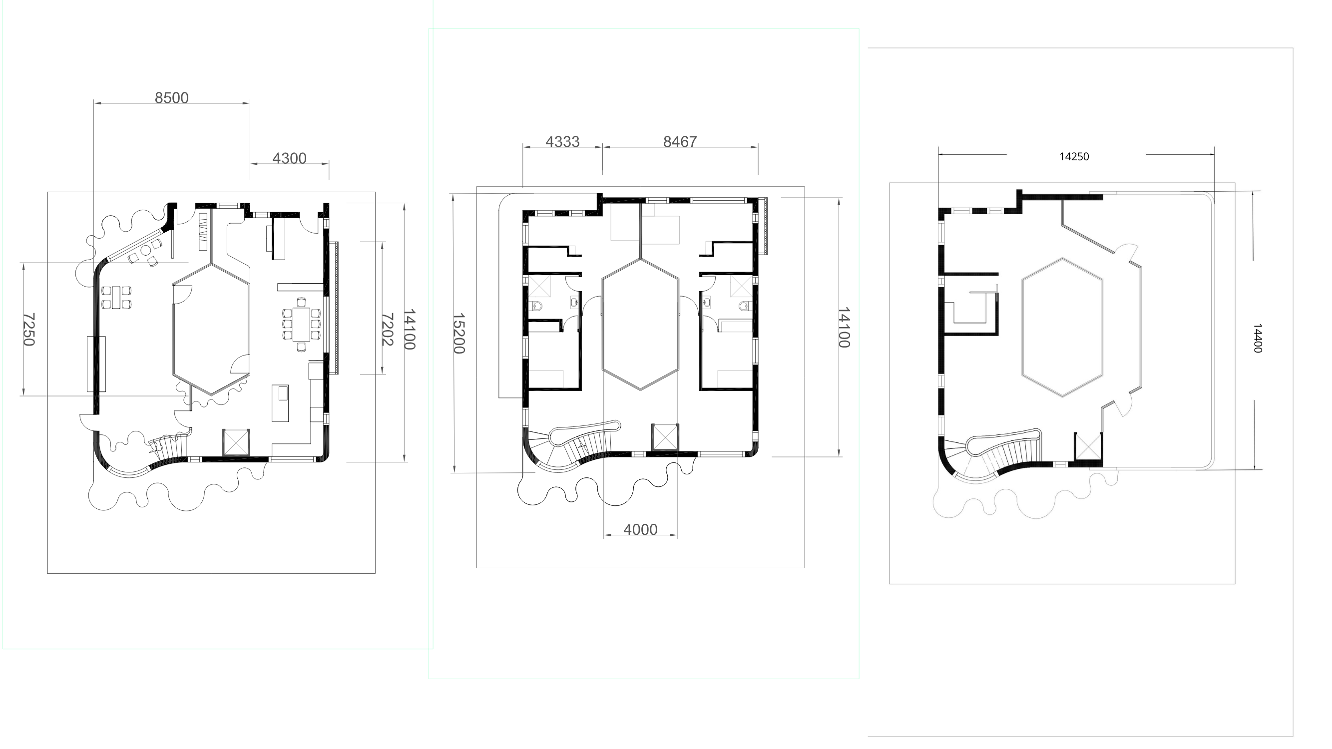
Shared is a trauma-informed residential model that redefines housing as a tool for emotional regulation, economic empowerment, and identity reconstruction for individuals with invisible disabilities, particularly PTSD and CPTSD.The design activates a previously unused urban alleyway, transforming it into a communal interface anchored by a resident-run café, creating soft thresholds between public exposure and private healing. This not only encourages voluntary social interaction, but also enables financial autonomy through integrated employment opportunities.At the core of the system is a Resident Advisor, appointed through institutional partnerships, who acts as a live-in resource hub - ensuring trauma-responsive care, peer regulation, and stability without institutional rigidity.With privacy-graded spatial zones, sensory-calibrated circulation, and embedded programmatic layers for workshops, reflection, and routine, SHARED functions as a closed-loop ecosystem: housing, employment, and support form an interdependent system of recovery and growth.This project offers a scalable model that reframes trauma not as a limitation, but as a designable condition - where space becomes both container and catalyst for self-concept, community integration, and long-term empowerment.

“Shared reimagines housing as a trauma-responsive system of care, empowerment, and identity-building for individuals with PTSD and CPTSD. Centered on spatial agency and emotional regulation, the project transforms an inactive alley into a semi-public interface, anchored by a resident-run café that fosters social re-entry and financial autonomy.With privacy-graded zones, intuitive flow, and a live-in Resident Advisor appointed through institutional partnerships, Shared closes the loop between housing, support, and employment. It offers a scalable model where architecture functions as both refuge and catalyst - not just to shelter, but to empower.”

Share with someone

Shared: A Trauma-Informed Typology for Invisible Disabilities
Shared: A Trauma-Informed Typology for Invisible Disabilities
Shared: A Trauma-Informed Typology for Invisible Disabilities
Shared: A Trauma-Informed Typology for Invisible Disabilities
Shared: A Trauma-Informed Typology for Invisible Disabilities
Shared: A Trauma-Informed Typology for Invisible Disabilities
Shared: A Trauma-Informed Typology for Invisible Disabilities
Shared: A Trauma-Informed Typology for Invisible Disabilities
Shared: A Trauma-Informed Typology for Invisible Disabilities
Shared: A Trauma-Informed Typology for Invisible Disabilities

Work by

Anisha .

Environmental Design

“Design is not a layer added onto life - it is the structure life unfolds within. My work moves beyond troubleshooting symptoms of exclusion to reverse-engineer the systems that produce them. Through...” [More]