Gradex banner

Qingsong Chen Chen

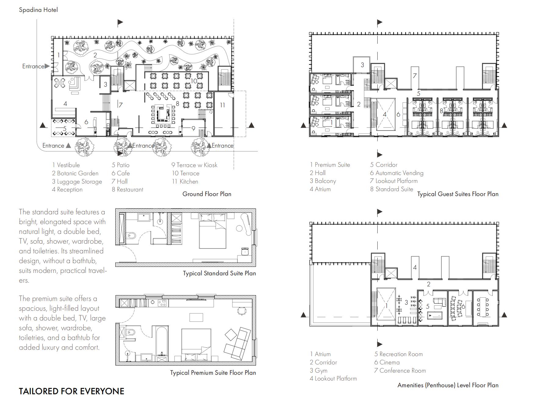
Spadina Hotel

Environmental Design
2024
The site at King St. and Spadina Ave. in Old Toronto is a bustling, accessible urban hub with vibrant commercial activity but limited green spaces. The area's public greenery is minimal and lacks biodiversity, highlighting a design opportunity to balance urban vitality with ecological enhancement.Team Members: Myself, Linfeng LiAll portfolio content reflects my individual work.

“The target audience includes cost-conscious young professionals aged 20 to 49, balancing business and leisure travel. They value affordability, quality, and social interactions, favoring hotels with unique shopping, modern recreation, and communal spaces. With diverse behaviors and dynamic lifestyles, they represent a key demographic for the project.”

Share with someone

Preliminary Research
Preliminary Research
Concept Generation
Concept Generation
Functional Zoning& Situations
Functional Zoning& Situations
Technical Drawings
Technical Drawings
Day and Night Renderings& Sections
Day and Night Renderings& Sections

Work by

Qingsong Chen Chen

Environmental Design

“To me, design is not decoration but a vessel for negotiating—bridging people, nature, and built environments. Non-intrusive, ecologically responsive, and socially inclusive design is my approach to...” [More]